1145 Earl Leach Rd, Cumberland Furnace, Tennessee 37051

TN, Cumberland Furnace
$165,000
  • Closed Status
  • 414 Days Off Market Sorry Charlie 🙁
  • Residential Property Type
  • 2 Beds Total Bedrooms
  • 1 Baths Full + Half Bathrooms
  • 750 Total Sqft $220/sqft
  • 1.75 Acres Lot/Land Size
  • 1986 Year Built
  • Mortgage Wizard 3000 Advanced Breakdown
Property Description

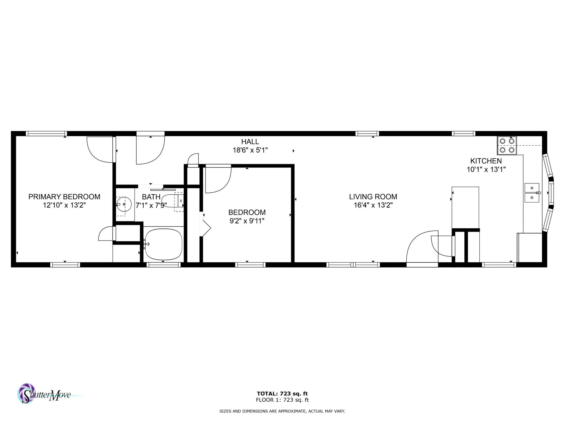
Meticulously cared for single wide mobile home on 1.75 private acres. 2 bedroom, 1 bath with a laundry hook up in unit. Lots of light from the bay window in the kitchen. Roof less than 2 years old. HVAC & hot water heater 2 years old. Fresh paint inside and out. Newer appliances, windows and cabinets. New flooring. Storage shed on site for all of your yard treasures. This is a 1986 model that has a secured foundation with Hurricane Tie Downs. Newer deck to enjoy a relaxing cup of coffee. Fresh gravel on the driveway. Has been detitled and retitled in the current owners name, ready to transfer to a new buyer. Buyer and seller to use Bell & Alexander to close because of the title work just completed. Acreage extends up the hill in the back that ends at beautiful farm land. See video tour. This home should be able to be financed, call Rosemary Rikel with Nexa for a single wide home loan 615-945-9375. You don’t want to miss this fantastic home in a beautiful country setting. Not in the flood plain.

Property Details
  • Property Type: Residential
  • Listing Type: For Sale
  • MLS #: 2764432
  • Price: $165,000
  • Full Bathrooms: 1
  • Square Footage: 750 Sqft
  • Year Built: 1986
  • Lot Area: 1.75 Acre
  • Office Name: Williamson Real Estate
  • Agent Name: Gabrielle Hanson
  • Property Sub Type: Mobile Home
  • Listing Status: Closed
Location Info
  • Street Number: 1145
  • Street: Earl Leach Rd
  • City Cumberland Furnace
  • State TN
  • Zipcode 37051
  • County Dickson County, TN
  • Subdivision Beautiful Country Property
  • Longitude: W88° 38' 14.2''
  • Latitude: N36° 16' 18.2''
  • Directions: HWY 48N THRU CHARLOTTE LEFT ON NEW DRY HOLLOW RIGHT ON LEACH RD(SAME AS EARL LEACH ROAD)
Features
  • Heating System Central
  • Cooling System Central Air
  • Basement None, Crawl Space
  • Patio Covered, Porch
  • Utilities Water Available
  • Flooring Laminate
  • Laundry Features Electric Dryer Hookup, Washer Hookup
  • Sewer Septic Tank
Appliances
  • Refrigerator
  • Electric Oven
  • Electric Range
Schools
  • Elementary School: Vanleer Elementary
  • Middle School: Charlotte Middle School
  • High School: Creek Wood High School
Additional Info
  • Water Source: Public
  • Building Size: 750 Sqft
  • Construction Materials: Aluminum Siding
  • Levels: One
  • On Market Date: November 29th, 2024
  • Previous Price: $165,000
  • Stories: 1
Financial
  • Annual Tax Amount: $121
Listing Data
  • Mls Status: Closed
  • Originating System Name: RealTracs
  • Special Listing Conditions: Standard
  • Modification Timestamp: Sep 9th, 2025 @ 6:56pm
  • Status Change Timestamp: Apr 6th, 2025 @ 12:18pm
mls grid

MLS Source Origin Disclaimer

The data relating to real estate for sale on this website appears in part through an MLS API system, a voluntary cooperative exchange of property listing data between licensed real estate brokerage firms in which Cribz participates, and is provided by local multiple listing services through a licensing agreement. The originating system name of the MLS provider is shown in the listing information on each listing page. Real estate listings held by brokerage firms other than Cribz contain detailed information about them, including the name of the listing brokers. All information is deemed reliable but not guaranteed and should be independently verified. All properties are subject to prior sale, change, or withdrawal. Neither listing broker(s) nor Cribz shall be responsible for any typographical errors, misinformation, or misprints and shall be held totally harmless.

IDX information is provided exclusively for consumers’ personal non-commercial use, may not be used for any purpose other than to identify prospective properties consumers may be interested in purchasing. The data is deemed reliable but is not guaranteed by MLS GRID, and the use of the MLS GRID Data may be subject to an end user license agreement prescribed by the Member Participant’s applicable MLS, if any, and as amended from time to time.

Based on information submitted to the MLS GRID. All data is obtained from various sources and may not have been verified by broker or MLS GRID. Supplied Open House Information is subject to change without notice. All information should be independently reviewed and verified for accuracy. Properties may or may not be listed by the office/agent presenting the information.

The Digital Millennium Copyright Act of 1998, 17 U.S.C. § 512 (the “DMCA”) provides recourse for copyright owners who believe that material appearing on the Internet infringes their rights under U.S. copyright law. If you believe in good faith that any content or material made available in connection with our website or services infringes your copyright, you (or your agent) may send us a notice requesting that the content or material be removed, or access to it blocked. Notices must be sent in writing by email to the contact page of this website.

The DMCA requires that your notice of alleged copyright infringement include the following information: (1) description of the copyrighted work that is the subject of claimed infringement; (2) description of the alleged infringing content and information sufficient to permit us to locate the content; (3) contact information for you, including your address, telephone number, and email address; (4) a statement by you that you have a good faith belief that the content in the manner complained of is not authorized by the copyright owner, or its agent, or by the operation of any law; (5) a statement by you, signed under penalty of perjury, that the information in the notification is accurate and that you have the authority to enforce the copyrights that are claimed to be infringed; and (6) a physical or electronic signature of the copyright owner or a person authorized to act on the copyright owner’s behalf. Failure to include all of the above information may result in the delay of the processing of your complaint.

Back to top