5689 Bradyville Pike, Murfreesboro, Tennessee 37127

TN, Murfreesboro
$899,900 $915,000
  • Canceled Status
  • 354 Days Off Market Sorry Charlie 🙁
  • Residential Property Type
  • 3 Beds Total Bedrooms
  • 3 Baths Full + Half Bathrooms
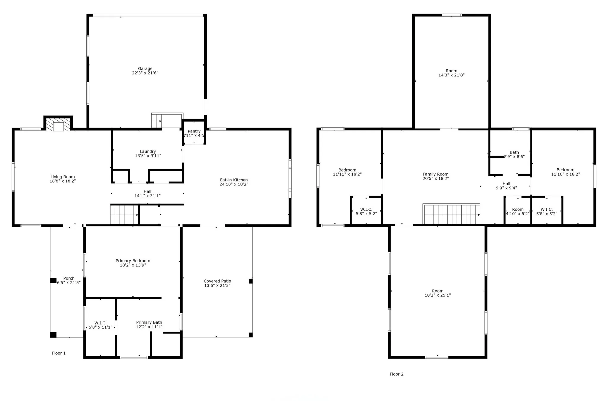
  • 3382 Total Sqft $266/sqft
  • 5.73 Acres Lot/Land Size
  • 2022 Year Built
  • Mortgage Wizard 3000 Advanced Breakdown
Property Description

Secluded Brick Farmhouse on 5.73 Acres – The Ideal Middle TN Retreat! Discover this beautiful, energy-efficient brick farmhouse nestled on 5.73 acres in the heart of Tennessee. This custom-designed home combines classic charm with modern sustainability, featuring triple-pane windows, extensive insulation, and a fully encapsulated crawlspace for year-round comfort and low energy costs. The spacious, open floor plan includes a main-level primary suite with a luxurious tiled shower, freestanding soaking tub, and walk-in closet. The gourmet kitchen is a chef’s dream, with custom cabinetry, quartz countertops, a walk-in pantry, double ovens, a pot filler, and a center island with seating and a wine cooler. Relax and unwind on the covered front and back porches, perfect for enjoying the peaceful wooded surroundings. The property is wired for 400-amp power and includes a 2″ main water line, offering potential for future expansion. The level, cleared build site is ideal for a mini farm, with plenty of space for gardening, livestock, or your own private homestead. Conveniently located just 8 minutes from local amenities like Starbucks, shopping, and dining, this property offers the perfect blend of privacy and accessibility. This stunning farmhouse in Murfreesboro is perfect for those seeking a peaceful, rural lifestyle with easy access to urban conveniences. Bonus: Preferred lender is offering up to 1% of the loan amount toward closing costs! Don’t miss this opportunity to own a secluded, energy-efficient home on prime acreage in Middle Tennessee!

Property Details
  • Property Type: Residential
  • Listing Type: For Sale
  • MLS #: 2816864
  • Price: $899,900
  • Half Bathrooms: 1
  • Full Bathrooms: 2
  • Square Footage: 3,382 Sqft
  • Year Built: 2022
  • Lot Area: 5.73 Acre
  • Office Name: Keller Williams Realty - Murfreesboro
  • Agent Name: Jessica Warner
  • Property Sub Type: Single Family Residence
  • Roof: Shingle
  • Listing Status: Canceled
Location Info
  • Street Number: 5689
  • Street: Bradyville Pike
  • City Murfreesboro
  • State TN
  • Zipcode 37127
  • County Rutherford County, TN
  • Subdivision Edmund Armstrong Estate
  • Longitude: W87° 41' 51.7''
  • Latitude: N35° 47' 36''
  • Directions: From I-24 exit 81 for S Church/Hwy 231. Travel north to R on S. Rutherford Blvd, R on Bradyville Pk, then about 2 miles to driveway on the left.
Features
  • Heating System Central, Electric
  • Cooling System Electric
  • Basement Crawl Space
  • Fireplace Wood Burning
  • Patio Covered, Patio, Porch
  • Parking Garage Door Opener, Garage Faces Side
  • Utilities Water Available
  • Fireplaces Total 1
  • Flooring Laminate, Carpet, Tile
  • Interior Features Walk-In Closet(s), Primary Bedroom Main Floor, High Speed Internet, Ceiling Fan(s), Extra Closets
  • Laundry Features Electric Dryer Hookup, Washer Hookup
  • Sewer Septic Tank
Appliances
  • Cooktop
  • Dishwasher
  • Disposal
  • Electric Oven
  • Double Oven
  • Stainless Steel Appliance(s)
Schools
  • Elementary School: Buchanan Elementary
  • Middle School: Whitworth-Buchanan Middle School
  • High School: Riverdale High School
Additional Info
  • Water Source: Private
  • Building Size: 3,382 Sqft
  • Construction Materials: Brick
  • Garage: 2 Spaces
  • Levels: Two
  • Lot Features: Level, Private
  • On Market Date: April 11th, 2025
  • Previous Price: $915,000
  • Stories: 2
Financial
  • Annual Tax Amount: $3,024
Listing Data
  • Co List Agent Full Name: Melissa Goetz
  • Co List Office Name: Keller Williams Realty - Murfreesboro
  • Mls Status: Canceled
  • Originating System Name: RealTracs
  • Special Listing Conditions: Standard
  • Modification Timestamp: May 9th, 2025 @ 12:52pm
  • Status Change Timestamp: May 9th, 2025 @ 12:50pm
mls grid

MLS Source Origin Disclaimer

The data relating to real estate for sale on this website appears in part through an MLS API system, a voluntary cooperative exchange of property listing data between licensed real estate brokerage firms in which Cribz participates, and is provided by local multiple listing services through a licensing agreement. The originating system name of the MLS provider is shown in the listing information on each listing page. Real estate listings held by brokerage firms other than Cribz contain detailed information about them, including the name of the listing brokers. All information is deemed reliable but not guaranteed and should be independently verified. All properties are subject to prior sale, change, or withdrawal. Neither listing broker(s) nor Cribz shall be responsible for any typographical errors, misinformation, or misprints and shall be held totally harmless.

IDX information is provided exclusively for consumers’ personal non-commercial use, may not be used for any purpose other than to identify prospective properties consumers may be interested in purchasing. The data is deemed reliable but is not guaranteed by MLS GRID, and the use of the MLS GRID Data may be subject to an end user license agreement prescribed by the Member Participant’s applicable MLS, if any, and as amended from time to time.

Based on information submitted to the MLS GRID. All data is obtained from various sources and may not have been verified by broker or MLS GRID. Supplied Open House Information is subject to change without notice. All information should be independently reviewed and verified for accuracy. Properties may or may not be listed by the office/agent presenting the information.

The Digital Millennium Copyright Act of 1998, 17 U.S.C. § 512 (the “DMCA”) provides recourse for copyright owners who believe that material appearing on the Internet infringes their rights under U.S. copyright law. If you believe in good faith that any content or material made available in connection with our website or services infringes your copyright, you (or your agent) may send us a notice requesting that the content or material be removed, or access to it blocked. Notices must be sent in writing by email to the contact page of this website.

The DMCA requires that your notice of alleged copyright infringement include the following information: (1) description of the copyrighted work that is the subject of claimed infringement; (2) description of the alleged infringing content and information sufficient to permit us to locate the content; (3) contact information for you, including your address, telephone number, and email address; (4) a statement by you that you have a good faith belief that the content in the manner complained of is not authorized by the copyright owner, or its agent, or by the operation of any law; (5) a statement by you, signed under penalty of perjury, that the information in the notification is accurate and that you have the authority to enforce the copyrights that are claimed to be infringed; and (6) a physical or electronic signature of the copyright owner or a person authorized to act on the copyright owner’s behalf. Failure to include all of the above information may result in the delay of the processing of your complaint.

Back to top