112 Gilford Terrace Terrace, Crossville, Tennessee 38558

TN, Crossville
$279,900 $329,900
  • Closed Status
  • 74 Days Off Market Sorry Charlie 🙁
  • Residential Property Type
  • 3 Beds Total Bedrooms
  • 2 Baths Full + Half Bathrooms
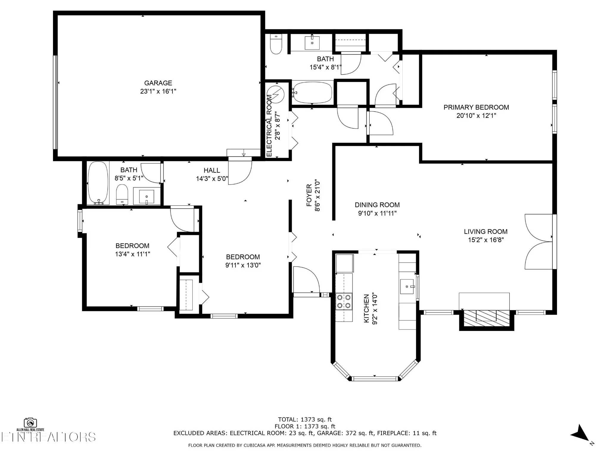
  • 1389 Total Sqft $202/sqft
  • 0.22 Acres Lot/Land Size
  • 1985 Year Built
  • Mortgage Wizard 3000 Advanced Breakdown
Property Description

Welcome to this Beautiful Lake View Home in Fairfield Glade-across from Ryan Lake***Located in a great golfing community in Fairfield Glade, this newly remodeled 3 bedroom, 2 bath home offers a great floor plan, with a large living room featuring a gas log stone fireplace, Kitchen with new appliances and granite countertops, new roof, flooring, paint, water heater, and much more. The master suite includes an ensuite bathroom, while the two additional bedrooms provide ample space for family and guests. Enjoy the outdoors year-round with the screened-in back porch. The attached garage ads convenience and additional storage space. Situated in Fairfield Glade, residents have access to golf courses, recreational facilities, walking trails, and water activities. Come and enjoy an active lifestyle in one of Tennessee’s most desirable communities. Don’t miss your opportunity to own this lovely home in a prime location. Schedule your showing today!

Property Details
  • Property Type: Residential
  • Listing Type: For Sale
  • MLS #: 2864973
  • Price: $279,900
  • Full Bathrooms: 2
  • Square Footage: 1,389 Sqft
  • Year Built: 1985
  • Lot Area: 0.22 Acre
  • Office Name: Mitchell Real Estate & Auction LLC
  • Agent Name: Lisa Ann Garrett
  • Property Sub Type: Single Family Residence
  • Listing Status: Closed
Location Info
  • Street Number: 112
  • Street: Gilford Terrace Terrace
  • City Crossville
  • State TN
  • Zipcode 38558
  • County Cumberland County, TN
  • Subdivision Lake Catherine
  • Longitude: W85° 6' 26.7''
  • Latitude: N36° 0' 23.9''
  • Directions: Going off interstate on Peavine toward Fairfield Glade, turn right onto Snead Drive, then 0.09 of a mile property is on Left. SOP. Across from Ryan Lake.
Features
  • Heating System Central, Electric, Natural Gas
  • Cooling System Central Air
  • Basement Crawl Space
  • Patio Covered, Porch, Deck
  • Parking Attached
  • Utilities Electricity Available, Water Available, Natural Gas Available
  • Architectural Style Traditional
  • Fireplaces Total 1
  • Flooring Tile, Vinyl
  • Interior Features Walk-In Closet(s)
  • Laundry Features Electric Dryer Hookup, Washer Hookup
  • Sewer Public Sewer
Appliances
  • Dishwasher
  • Refrigerator
  • Oven
Additional Info
  • Water Source: Public
  • Association Amenities: Pool,Golf Course
  • Attached Garage: Yes
  • Building Size: 1,389 Sqft
  • Construction Materials: Vinyl Siding, Frame
  • Garage: 1 Spaces
  • Levels: One
  • Lot Features: Corner Lot, Other
  • Lot Size Dimensions: 65 X 120 IRR
  • On Market Date: March 2nd, 2025
  • Previous Price: $329,900
  • Stories: 1
Financial
  • Association Fee: $120
  • Association Fee Frequency: Monthly
  • Association: Yes
  • Annual Tax Amount: $495
Listing Data
  • Mls Status: Closed
  • Originating System Name: RealTracs
  • Special Listing Conditions: Standard
  • Modification Timestamp: Apr 8th, 2026 @ 6:25pm
  • Status Change Timestamp: Feb 21st, 2026 @ 12:58pm
mls grid

MLS Source Origin Disclaimer

The data relating to real estate for sale on this website appears in part through an MLS API system, a voluntary cooperative exchange of property listing data between licensed real estate brokerage firms in which Cribz participates, and is provided by local multiple listing services through a licensing agreement. The originating system name of the MLS provider is shown in the listing information on each listing page. Real estate listings held by brokerage firms other than Cribz contain detailed information about them, including the name of the listing brokers. All information is deemed reliable but not guaranteed and should be independently verified. All properties are subject to prior sale, change, or withdrawal. Neither listing broker(s) nor Cribz shall be responsible for any typographical errors, misinformation, or misprints and shall be held totally harmless.

IDX information is provided exclusively for consumers’ personal non-commercial use, may not be used for any purpose other than to identify prospective properties consumers may be interested in purchasing. The data is deemed reliable but is not guaranteed by MLS GRID, and the use of the MLS GRID Data may be subject to an end user license agreement prescribed by the Member Participant’s applicable MLS, if any, and as amended from time to time.

Based on information submitted to the MLS GRID. All data is obtained from various sources and may not have been verified by broker or MLS GRID. Supplied Open House Information is subject to change without notice. All information should be independently reviewed and verified for accuracy. Properties may or may not be listed by the office/agent presenting the information.

The Digital Millennium Copyright Act of 1998, 17 U.S.C. § 512 (the “DMCA”) provides recourse for copyright owners who believe that material appearing on the Internet infringes their rights under U.S. copyright law. If you believe in good faith that any content or material made available in connection with our website or services infringes your copyright, you (or your agent) may send us a notice requesting that the content or material be removed, or access to it blocked. Notices must be sent in writing by email to the contact page of this website.

The DMCA requires that your notice of alleged copyright infringement include the following information: (1) description of the copyrighted work that is the subject of claimed infringement; (2) description of the alleged infringing content and information sufficient to permit us to locate the content; (3) contact information for you, including your address, telephone number, and email address; (4) a statement by you that you have a good faith belief that the content in the manner complained of is not authorized by the copyright owner, or its agent, or by the operation of any law; (5) a statement by you, signed under penalty of perjury, that the information in the notification is accurate and that you have the authority to enforce the copyrights that are claimed to be infringed; and (6) a physical or electronic signature of the copyright owner or a person authorized to act on the copyright owner’s behalf. Failure to include all of the above information may result in the delay of the processing of your complaint.

Back to top