102 Shields Ln, Madison, Tennessee 37115

TN, Madison
$749,000 $825,000
  • Canceled Status
  • 514 Days Off Market Sorry Charlie 🙁
  • Land Property Type
  • 0.55 Acres Lot/Land Size
  • Mortgage Wizard 3000 Advanced Breakdown
Property Description

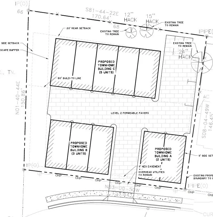
Great land bank opportunity or develop right away! Fits 10 units 77k/pad. This location would make a great build to rent development! Flat corner lot located in prime Madison location, 10 min to downtown Nashville. 0.55 acres zoned OR-20-A. Allows various uses. Comes w/feasibility study for 10-unit development. The sale comes with the topo + boundary survey from HFR Wold and a feasibility study performed by Thomas & Hutton Engineering. 100 Shields Ln sold their 3bed/2.5ba 1,613-1,750SF at $303/SF and rented recently for 1.9/SF. 30-unit development coming along S Graycroft Ave. Core Development is redeveloping the 18-acre Due West Towers 2-min from 102 Shields w/ an emphasis on arts, music, food, commerce, social enterprise, and mixed-income housing.” The Creative Way Village by Samaroo Development is 3-min away.

Property Details
  • Property Type: Land
  • Listing Type: For Sale
  • MLS #: 2583897
  • Price: $749,000
  • Lot Area: 0.55 Acre
  • Office Name: The Sapphire Group Real Estate
  • Agent Name: Josephine Saffert
  • Listing Status: Canceled
Location Info
  • Street Number: 102
  • Street: Shields Ln
  • City Madison
  • State TN
  • Zipcode 37115
  • County Davidson County, TN
  • Subdivision n/a
  • Longitude: W87° 15' 44.6''
  • Latitude: N36° 14' 48.9''
  • Zoning: OR20
  • Directions: From Nashville, Gallatin Rd, Off Due W Ave and Briarville Rd, close to Saunders Ave & Gallatin Pike. Next to Goodpasture High School.
Features
  • Utilities Water Available
  • Sewer Public Sewer
Schools
  • Elementary School: Chadwell Elementary
  • Middle School: Jere Baxter Middle
  • High School: Maplewood Comp High School
Additional Info
  • Water Source: Public
  • Current Use: Residential
  • Lot Features: Level
  • Lot Size Dimensions: 170 X 149
  • On Market Date: October 21st, 2023
  • Previous Price: $825,000
Financial
  • Annual Tax Amount: $1,013
Listing Data
  • Mls Status: Canceled
  • Originating System Name: RealTracs
  • Special Listing Conditions: Standard
  • Modification Timestamp: Sep 6th, 2024 @ 11:56pm
  • Status Change Timestamp: Sep 6th, 2024 @ 11:54pm
mls grid

MLS Source Origin Disclaimer

The data relating to real estate for sale on this website appears in part through an MLS API system, a voluntary cooperative exchange of property listing data between licensed real estate brokerage firms in which Cribz participates, and is provided by local multiple listing services through a licensing agreement. The originating system name of the MLS provider is shown in the listing information on each listing page. Real estate listings held by brokerage firms other than Cribz contain detailed information about them, including the name of the listing brokers. All information is deemed reliable but not guaranteed and should be independently verified. All properties are subject to prior sale, change, or withdrawal. Neither listing broker(s) nor Cribz shall be responsible for any typographical errors, misinformation, or misprints and shall be held totally harmless.

IDX information is provided exclusively for consumers’ personal non-commercial use, may not be used for any purpose other than to identify prospective properties consumers may be interested in purchasing. The data is deemed reliable but is not guaranteed by MLS GRID, and the use of the MLS GRID Data may be subject to an end user license agreement prescribed by the Member Participant’s applicable MLS, if any, and as amended from time to time.

Based on information submitted to the MLS GRID. All data is obtained from various sources and may not have been verified by broker or MLS GRID. Supplied Open House Information is subject to change without notice. All information should be independently reviewed and verified for accuracy. Properties may or may not be listed by the office/agent presenting the information.

The Digital Millennium Copyright Act of 1998, 17 U.S.C. § 512 (the “DMCA”) provides recourse for copyright owners who believe that material appearing on the Internet infringes their rights under U.S. copyright law. If you believe in good faith that any content or material made available in connection with our website or services infringes your copyright, you (or your agent) may send us a notice requesting that the content or material be removed, or access to it blocked. Notices must be sent in writing by email to the contact page of this website.

The DMCA requires that your notice of alleged copyright infringement include the following information: (1) description of the copyrighted work that is the subject of claimed infringement; (2) description of the alleged infringing content and information sufficient to permit us to locate the content; (3) contact information for you, including your address, telephone number, and email address; (4) a statement by you that you have a good faith belief that the content in the manner complained of is not authorized by the copyright owner, or its agent, or by the operation of any law; (5) a statement by you, signed under penalty of perjury, that the information in the notification is accurate and that you have the authority to enforce the copyrights that are claimed to be infringed; and (6) a physical or electronic signature of the copyright owner or a person authorized to act on the copyright owner’s behalf. Failure to include all of the above information may result in the delay of the processing of your complaint.

Back to top