10610 Highway 79, Springville, Tennessee 38256

TN, Springville
$649,000 $694,000
  • Closed Status
  • 176 Days Off Market Sorry Charlie 🙁
  • Commercial Sale Property Type
  • 3200 Total Sqft $203/sqft
  • 10 Acres Lot/Land Size
  • 2008 Year Built
  • Mortgage Wizard 3000 Advanced Breakdown
Featured Video
Property Description

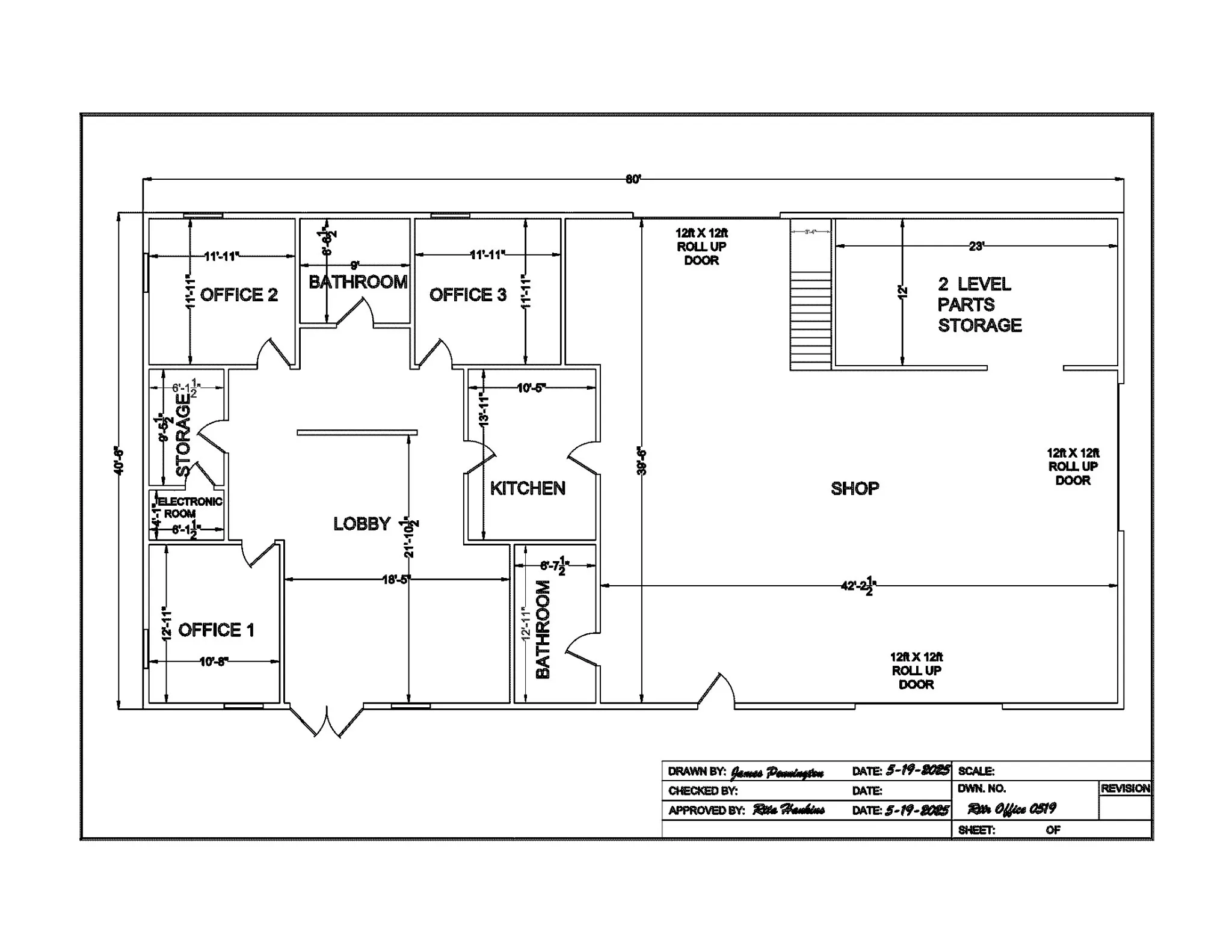
Commercial Building with 10 acres just outside of Paris, TN on Hwy 79N. High traffic count 4-lane state highway. Excellent location and facility to accommodate a variety of business structures. 3200 heated and cooled square feet, Large reception area, 3 private offices, 2 Bathrooms, Full kitchen with all appliances, Multiple large storage/ multipurpose areas, ADA accessible, Tile & Polished Concrete flooring, 3 12×12 Overhead Doors, Multiple Compressed Air Ports on exterior and interior of shop, Multiple Water Hose Bibs, Natural Gas, High Speed Internet, Electric & Water, 1000 gal. Septic, Welder hookup, 2 HVAC Units, Alarm System, 220 V Wiring, 5 yr. old Metal Roof, Flood Lights, Security Cameras, Security Fencing. Building size 80’x40′ is well kept and move in ready.

Property Details
  • Property Type: Commercial Sale
  • Listing Type: For Sale
  • MLS #: 2885237
  • Price: $649,000
  • Year Built: 2008
  • Lot Area: 10 Acre
  • Office Name: Legacy Signature Properties, LLC
  • Agent Name: Rita J. Hankins
  • Property Sub Type: Mixed Use
  • Roof: Metal
  • Listing Status: Closed
Location Info
  • Street Number: 10610
  • Street: Highway 79
  • City Springville
  • State TN
  • Zipcode 38256
  • County Henry County, TN
  • Longitude: W89° 50' 33.7''
  • Latitude: N36° 23' 38.5''
  • Zoning: Commercial
  • Directions: From 1-40 West take exit 126 onto US-641 toward Camden/Paris. Drive 34 miles then turn right onto SR-218. In 4.8 miles turn right onto US-79N. Drive 7.3 miles to property on right.
  • Street Dir Suffix: N
Additional Info
  • Building Size: 3,200 Sqft
  • On Market Date: May 14th, 2025
  • Previous Price: $694,000
Listing Data
  • Mls Status: Closed
  • Originating System Name: RealTracs
  • Special Listing Conditions: Standard
  • Modification Timestamp: Oct 23rd, 2025 @ 1:54am
  • Status Change Timestamp: Oct 23rd, 2025 @ 1:52am
mls grid

MLS Source Origin Disclaimer

The data relating to real estate for sale on this website appears in part through an MLS API system, a voluntary cooperative exchange of property listing data between licensed real estate brokerage firms in which Cribz participates, and is provided by local multiple listing services through a licensing agreement. The originating system name of the MLS provider is shown in the listing information on each listing page. Real estate listings held by brokerage firms other than Cribz contain detailed information about them, including the name of the listing brokers. All information is deemed reliable but not guaranteed and should be independently verified. All properties are subject to prior sale, change, or withdrawal. Neither listing broker(s) nor Cribz shall be responsible for any typographical errors, misinformation, or misprints and shall be held totally harmless.

IDX information is provided exclusively for consumers’ personal non-commercial use, may not be used for any purpose other than to identify prospective properties consumers may be interested in purchasing. The data is deemed reliable but is not guaranteed by MLS GRID, and the use of the MLS GRID Data may be subject to an end user license agreement prescribed by the Member Participant’s applicable MLS, if any, and as amended from time to time.

Based on information submitted to the MLS GRID. All data is obtained from various sources and may not have been verified by broker or MLS GRID. Supplied Open House Information is subject to change without notice. All information should be independently reviewed and verified for accuracy. Properties may or may not be listed by the office/agent presenting the information.

The Digital Millennium Copyright Act of 1998, 17 U.S.C. § 512 (the “DMCA”) provides recourse for copyright owners who believe that material appearing on the Internet infringes their rights under U.S. copyright law. If you believe in good faith that any content or material made available in connection with our website or services infringes your copyright, you (or your agent) may send us a notice requesting that the content or material be removed, or access to it blocked. Notices must be sent in writing by email to the contact page of this website.

The DMCA requires that your notice of alleged copyright infringement include the following information: (1) description of the copyrighted work that is the subject of claimed infringement; (2) description of the alleged infringing content and information sufficient to permit us to locate the content; (3) contact information for you, including your address, telephone number, and email address; (4) a statement by you that you have a good faith belief that the content in the manner complained of is not authorized by the copyright owner, or its agent, or by the operation of any law; (5) a statement by you, signed under penalty of perjury, that the information in the notification is accurate and that you have the authority to enforce the copyrights that are claimed to be infringed; and (6) a physical or electronic signature of the copyright owner or a person authorized to act on the copyright owner’s behalf. Failure to include all of the above information may result in the delay of the processing of your complaint.

Back to top