235 Meadowbrook Dr, Smithville, Tennessee 37166

TN, Smithville
$220,000 $229,000
  • Closed Status
  • 141 Days Off Market Sorry Charlie 🙁
  • Residential Property Type
  • 3 Beds Total Bedrooms
  • 2 Baths Full + Half Bathrooms
  • 1682 Total Sqft $131/sqft
  • 0.35 Acres Lot/Land Size
  • 1972 Year Built
  • Mortgage Wizard 3000 Advanced Breakdown
Property Description

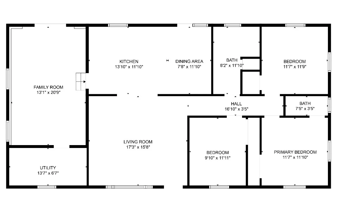
NEW PRICE! Fully remodeled in 2025, this 3 bedroom, 1.5 bathroom brick home is move-in ready with 1,682 sq. ft. of living space. Photos were taken before appliances were installed and before landscaping was finished— brand-new appliances are included and fresh landscaping is now complete. Recent updates feature fresh paint, new flooring, updated kitchen cabinets, countertops, lighting, and doors. The home offers a semi-open concept design, a spacious laundry room, and a large 377 sq. ft. bonus room that was once a garage. Enjoy the 108 sq. ft. open porch and 0.35-acre lot with 110 ft. of road frontage. Located in Smithville City Limits with city water, DTC Fiber internet, and low annual property taxes of $1,052.

Property Details
  • Property Type: Residential
  • Listing Type: For Sale
  • MLS #: 2980653
  • Price: $220,000
  • Half Bathrooms: 1
  • Full Bathrooms: 1
  • Square Footage: 1,682 Sqft
  • Year Built: 1972
  • Lot Area: 0.35 Acre
  • Office Name: Town & Lake Realty, Inc.
  • Agent Name: Jennifer Hannah, Broker
  • Property Sub Type: Single Family Residence
  • Listing Status: Closed
Location Info
  • Street Number: 235
  • Street: Meadowbrook Dr
  • City Smithville
  • State TN
  • Zipcode 37166
  • County Dekalb County, TN
  • Subdivision Trudie Vickers
  • Longitude: W86° 10' 23.8''
  • Latitude: N35° 56' 44.5''
  • Directions: From DeKalb County Courthouse, go west on Court Ave, turn south on Main St/TN-56. Continue a short distance, then turn left on Meadowbrook Dr. Destination, 235 Meadowbrook Dr, is on the left.
Features
  • Heating System Central
  • Cooling System Central Air
  • Basement Crawl Space
  • Utilities Water Available
  • Flooring Vinyl
  • Sewer Public Sewer
Appliances
  • None
Schools
  • Elementary School: Smithville Elementary
  • Middle School: DeKalb Middle School
  • High School: De Kalb County High School
Additional Info
  • Water Source: Public
  • Building Size: 1,682 Sqft
  • Construction Materials: Brick
  • Foundation Details: Brick/Mortar
  • Levels: One
  • Lot Size Dimensions: 110X138
  • On Market Date: August 27th, 2025
  • Previous Price: $229,000
  • Stories: 1
Financial
  • Annual Tax Amount: $1,052
Listing Data
  • Co List Agent Full Name: Shane Martin
  • Co List Office Name: Town & Lake Realty, Inc.
  • Mls Status: Closed
  • Originating System Name: RealTracs
  • Special Listing Conditions: Standard, Owner Agent
  • Modification Timestamp: Nov 3rd, 2025 @ 3:41pm
  • Status Change Timestamp: Nov 3rd, 2025 @ 3:40pm
mls grid

MLS Source Origin Disclaimer

The data relating to real estate for sale on this website appears in part through an MLS API system, a voluntary cooperative exchange of property listing data between licensed real estate brokerage firms in which Cribz participates, and is provided by local multiple listing services through a licensing agreement. The originating system name of the MLS provider is shown in the listing information on each listing page. Real estate listings held by brokerage firms other than Cribz contain detailed information about them, including the name of the listing brokers. All information is deemed reliable but not guaranteed and should be independently verified. All properties are subject to prior sale, change, or withdrawal. Neither listing broker(s) nor Cribz shall be responsible for any typographical errors, misinformation, or misprints and shall be held totally harmless.

IDX information is provided exclusively for consumers’ personal non-commercial use, may not be used for any purpose other than to identify prospective properties consumers may be interested in purchasing. The data is deemed reliable but is not guaranteed by MLS GRID, and the use of the MLS GRID Data may be subject to an end user license agreement prescribed by the Member Participant’s applicable MLS, if any, and as amended from time to time.

Based on information submitted to the MLS GRID. All data is obtained from various sources and may not have been verified by broker or MLS GRID. Supplied Open House Information is subject to change without notice. All information should be independently reviewed and verified for accuracy. Properties may or may not be listed by the office/agent presenting the information.

The Digital Millennium Copyright Act of 1998, 17 U.S.C. § 512 (the “DMCA”) provides recourse for copyright owners who believe that material appearing on the Internet infringes their rights under U.S. copyright law. If you believe in good faith that any content or material made available in connection with our website or services infringes your copyright, you (or your agent) may send us a notice requesting that the content or material be removed, or access to it blocked. Notices must be sent in writing by email to the contact page of this website.

The DMCA requires that your notice of alleged copyright infringement include the following information: (1) description of the copyrighted work that is the subject of claimed infringement; (2) description of the alleged infringing content and information sufficient to permit us to locate the content; (3) contact information for you, including your address, telephone number, and email address; (4) a statement by you that you have a good faith belief that the content in the manner complained of is not authorized by the copyright owner, or its agent, or by the operation of any law; (5) a statement by you, signed under penalty of perjury, that the information in the notification is accurate and that you have the authority to enforce the copyrights that are claimed to be infringed; and (6) a physical or electronic signature of the copyright owner or a person authorized to act on the copyright owner’s behalf. Failure to include all of the above information may result in the delay of the processing of your complaint.

Back to top