6830 Chatterton Dr, College Grove, Tennessee 37046

TN, College Grove
$1,185,000 $1,200,000
  • Closed Status
  • 181 Days Off Market Sorry Charlie 🙁
  • Residential Property Type
  • 4 Beds Total Bedrooms
  • 4 Baths Full + Half Bathrooms
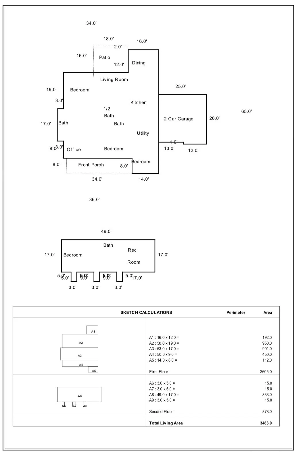
  • 3483 Total Sqft $340/sqft
  • 0.46 Acres Lot/Land Size
  • 2019 Year Built
  • Mortgage Wizard 3000 Advanced Breakdown
Property Description

Welcome to this stunning 4-bedroom, 3.5-bath home offering 3,493 sq. ft. of thoughtfully designed living space. With timeless curb appeal and modern comforts, this one-owner property is filled with custom details and versatile spaces. Step inside to a welcoming entryway with a home office behind French doors (5th bed?), perfect for working from home. The open living area is anchored by a brick fireplace and sliding doors that lead to a screened-in back porch with its own outdoor fireplace, an ideal spot for year-round entertaining. The kitchen is a chef’s dream, featuring white cabinetry, an oversized center island, stainless steel appliances, and a custom pantry. The primary suite is a private retreat with a luxury en-suite bathroom that includes a split dual vanity, soaking tub, walk-in shower, and spacious walk-in closet. Three (potentially 4) bedrooms are conveniently located downstairs, while upstairs you’ll find a home theatre room for the ultimate movie nights. Outside, enjoy a covered front porch and a huge flat backyard, perfect for a future pool or play space. Up to 1% lender credit on the loan amount when buyer uses Seller’s Preferred Lender.

Property Details
  • Property Type: Residential
  • Listing Type: For Sale
  • MLS #: 2986451
  • Price: $1,185,000
  • Half Bathrooms: 1
  • Full Bathrooms: 3
  • Square Footage: 3,483 Sqft
  • Year Built: 2019
  • Lot Area: 0.46 Acre
  • Office Name: The Ashton Real Estate Group of RE/MAX Advantage
  • Agent Name: Gary Ashton
  • Property Sub Type: Single Family Residence
  • Roof: Asphalt
  • Listing Status: Closed
Location Info
  • Street Number: 6830
  • Street: Chatterton Dr
  • City College Grove
  • State TN
  • Zipcode 37046
  • County Williamson County, TN
  • Subdivision McDaniel Farms Sec2
  • Longitude: W87° 16' 27.1''
  • Latitude: N35° 50' 18.8''
  • Directions: Take I-65 South to 840 East. Continue for 6 miles. Take Exit 37 and turn left onto Arno Road. Drive 1 mile on Arno Road and take a right onto Mcdaniel Road. Drive for 1 mile and Community will be on your right. For GPS use 6278 Mcdaniel Road 37046
Features
  • Heating System Natural Gas, Dual
  • Cooling System Central Air, Electric
  • Basement None
  • Fireplace Gas, Living Room
  • Patio Covered, Patio, Porch
  • Parking Garage Door Opener, Garage Faces Side
  • Utilities Electricity Available, Water Available, Natural Gas Available
  • Architectural Style Traditional
  • Fireplaces Total 2
  • Flooring Wood, Carpet, Tile
  • Interior Features Walk-In Closet(s), Entrance Foyer, Ceiling Fan(s)
  • Laundry Features Electric Dryer Hookup, Washer Hookup
  • Sewer STEP System
Appliances
  • Cooktop
  • Dishwasher
  • Microwave
  • Refrigerator
  • Disposal
  • Electric Oven
  • Double Oven
Schools
  • Elementary School: Arrington Elementary School
  • Middle School: Fred J Page Middle School
  • High School: Fred J Page High School
Additional Info
  • Water Source: Private
  • Association Amenities: Clubhouse,Fitness Center,Playground,Pool,Trail(s)
  • Building Size: 3,483 Sqft
  • Construction Materials: Hardboard Siding
  • Foundation Details: Slab
  • Garage: 2 Spaces
  • Levels: Two
  • Lot Features: Cul-De-Sac
  • Lot Size Dimensions: 125 X 160
  • On Market Date: September 2nd, 2025
  • Previous Price: $1,200,000
  • Stories: 2
Financial
  • Association Fee: $135
  • Association Fee Frequency: Monthly
  • Association: Yes
  • Annual Tax Amount: $3,234
Listing Data
  • Co List Agent Full Name: Rebecca A Reddick
  • Co List Office Name: The Ashton Real Estate Group of RE/MAX Advantage
  • Mls Status: Closed
  • Originating System Name: RealTracs
  • Special Listing Conditions: Standard
  • Modification Timestamp: Oct 21st, 2025 @ 4:23am
  • Status Change Timestamp: Oct 21st, 2025 @ 4:22am
mls grid

MLS Source Origin Disclaimer

The data relating to real estate for sale on this website appears in part through an MLS API system, a voluntary cooperative exchange of property listing data between licensed real estate brokerage firms in which Cribz participates, and is provided by local multiple listing services through a licensing agreement. The originating system name of the MLS provider is shown in the listing information on each listing page. Real estate listings held by brokerage firms other than Cribz contain detailed information about them, including the name of the listing brokers. All information is deemed reliable but not guaranteed and should be independently verified. All properties are subject to prior sale, change, or withdrawal. Neither listing broker(s) nor Cribz shall be responsible for any typographical errors, misinformation, or misprints and shall be held totally harmless.

IDX information is provided exclusively for consumers’ personal non-commercial use, may not be used for any purpose other than to identify prospective properties consumers may be interested in purchasing. The data is deemed reliable but is not guaranteed by MLS GRID, and the use of the MLS GRID Data may be subject to an end user license agreement prescribed by the Member Participant’s applicable MLS, if any, and as amended from time to time.

Based on information submitted to the MLS GRID. All data is obtained from various sources and may not have been verified by broker or MLS GRID. Supplied Open House Information is subject to change without notice. All information should be independently reviewed and verified for accuracy. Properties may or may not be listed by the office/agent presenting the information.

The Digital Millennium Copyright Act of 1998, 17 U.S.C. § 512 (the “DMCA”) provides recourse for copyright owners who believe that material appearing on the Internet infringes their rights under U.S. copyright law. If you believe in good faith that any content or material made available in connection with our website or services infringes your copyright, you (or your agent) may send us a notice requesting that the content or material be removed, or access to it blocked. Notices must be sent in writing by email to the contact page of this website.

The DMCA requires that your notice of alleged copyright infringement include the following information: (1) description of the copyrighted work that is the subject of claimed infringement; (2) description of the alleged infringing content and information sufficient to permit us to locate the content; (3) contact information for you, including your address, telephone number, and email address; (4) a statement by you that you have a good faith belief that the content in the manner complained of is not authorized by the copyright owner, or its agent, or by the operation of any law; (5) a statement by you, signed under penalty of perjury, that the information in the notification is accurate and that you have the authority to enforce the copyrights that are claimed to be infringed; and (6) a physical or electronic signature of the copyright owner or a person authorized to act on the copyright owner’s behalf. Failure to include all of the above information may result in the delay of the processing of your complaint.

Back to top