0 Giles Hill Rd, College Grove, Tennessee 37046

TN, College Grove
$1,235,000 $1,300,000
  • Closed Status
  • 171 Days Off Market Sorry Charlie 🙁
  • Residential Property Type
  • 2880 Total Sqft $429/sqft
  • 13.48 Acres Lot/Land Size
  • 2025 Year Built
  • Mortgage Wizard 3000 Advanced Breakdown
Property Description

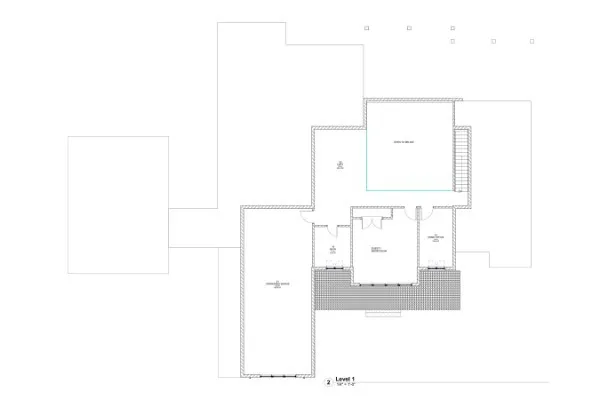
Positioned in one of Middle Tennessee’s most coveted rural luxury enclaves, this exceptional 13.482-acre property offers a rare blend of prestige, privacy, and potential. Surrounded by multimillion-dollar custom estates, the land boasts a valuable 7-bedroom approved septic, 796 feet of road frontage, and existing on-site infrastructure – a compelling foundation for your future estate, equestrian retreat, or investment build. At the center of the property stands a 60’X96′ commercial-grade shop,fully insulated, 8″ concrete foundation, offering versatility for luxury storage, workshop space, or conversion. Gently rolling topography, mature tree lines, and expansive open fields create a picturesque setting ideal for a private compound. Water is ran and in place at structure, heavy duty crush and run driveway is in. Located just minutes from Franklin, Thompson’s Station, and major commuting corridors, this premier parcel balances country serenity with urban convenience. With high-value neighboring estates and strategic road exposure, this offering presents an unmatched opportunity in Williamson County’s high-demand luxury land market. The home in the concept drawing can be built by Americana Homes.

Property Details
  • Property Type: Residential
  • Listing Type: For Sale
  • MLS #: 2991351
  • Price: $1,235,000
  • Square Footage: 2,880 Sqft
  • Year Built: 2025
  • Lot Area: 13.48 Acre
  • Office Name: Luxe Property Group
  • Agent Name: Wendy Smith - Guild Certified Luxury Home Marketing Specialist, SRS, MRP, ABR
  • Property Sub Type: Single Family Residence
  • Listing Status: Closed
Location Info
  • Street: Giles Hill Rd
  • City College Grove
  • State TN
  • Zipcode 37046
  • County Williamson County, TN
  • Subdivision Robinette Estates
  • Longitude: W87° 16' 40.6''
  • Latitude: N35° 44' 15.7''
  • Directions: From Franklin take I-65 S to I-840 E. Take exit 34 onto Peytonsville-Trinity Rd. Turn R at bottom of ramp and then turn L onto Peytonsville-Arno Rd. Go several miles to Giles Hill Rd. and turn R. Access to lot is just before 6943. New Const to L of lot
Features
  • Heating System None
  • Cooling System None
  • Basement None
  • Parking Detached
  • Utilities Water Available
  • Flooring Concrete
  • Sewer Private Sewer
Appliances
  • None
Schools
  • Elementary School: College Grove Elementary
  • Middle School: Fred J Page Middle School
  • High School: Fred J Page High School
Additional Info
  • Water Source: Public
  • Building Size: 2,880 Sqft
  • Construction Materials: Aluminum Siding
  • Garage: 12 Spaces
  • Levels: One
  • On Market Date: September 8th, 2025
  • Previous Price: $1,300,000
  • Stories: 1
Financial
  • Annual Tax Amount: $400
Listing Data
  • Mls Status: Closed
  • Originating System Name: RealTracs
  • Special Listing Conditions: Standard
  • Modification Timestamp: Oct 30th, 2025 @ 3:43pm
  • Status Change Timestamp: Oct 30th, 2025 @ 3:42pm
mls grid

MLS Source Origin Disclaimer

The data relating to real estate for sale on this website appears in part through an MLS API system, a voluntary cooperative exchange of property listing data between licensed real estate brokerage firms in which Cribz participates, and is provided by local multiple listing services through a licensing agreement. The originating system name of the MLS provider is shown in the listing information on each listing page. Real estate listings held by brokerage firms other than Cribz contain detailed information about them, including the name of the listing brokers. All information is deemed reliable but not guaranteed and should be independently verified. All properties are subject to prior sale, change, or withdrawal. Neither listing broker(s) nor Cribz shall be responsible for any typographical errors, misinformation, or misprints and shall be held totally harmless.

IDX information is provided exclusively for consumers’ personal non-commercial use, may not be used for any purpose other than to identify prospective properties consumers may be interested in purchasing. The data is deemed reliable but is not guaranteed by MLS GRID, and the use of the MLS GRID Data may be subject to an end user license agreement prescribed by the Member Participant’s applicable MLS, if any, and as amended from time to time.

Based on information submitted to the MLS GRID. All data is obtained from various sources and may not have been verified by broker or MLS GRID. Supplied Open House Information is subject to change without notice. All information should be independently reviewed and verified for accuracy. Properties may or may not be listed by the office/agent presenting the information.

The Digital Millennium Copyright Act of 1998, 17 U.S.C. § 512 (the “DMCA”) provides recourse for copyright owners who believe that material appearing on the Internet infringes their rights under U.S. copyright law. If you believe in good faith that any content or material made available in connection with our website or services infringes your copyright, you (or your agent) may send us a notice requesting that the content or material be removed, or access to it blocked. Notices must be sent in writing by email to the contact page of this website.

The DMCA requires that your notice of alleged copyright infringement include the following information: (1) description of the copyrighted work that is the subject of claimed infringement; (2) description of the alleged infringing content and information sufficient to permit us to locate the content; (3) contact information for you, including your address, telephone number, and email address; (4) a statement by you that you have a good faith belief that the content in the manner complained of is not authorized by the copyright owner, or its agent, or by the operation of any law; (5) a statement by you, signed under penalty of perjury, that the information in the notification is accurate and that you have the authority to enforce the copyrights that are claimed to be infringed; and (6) a physical or electronic signature of the copyright owner or a person authorized to act on the copyright owner’s behalf. Failure to include all of the above information may result in the delay of the processing of your complaint.

Back to top