315a Bill Hunter Rd, Celina, Tennessee 38551

TN, Celina
$329,000
  • Active Status
  • 188 Dayz On Cribz Total Days
  • Residential Property Type
  • 6 Beds Total Bedrooms
  • 2 Baths Full + Half Bathrooms
  • 2380 Total Sqft $138/sqft
  • 0.57 Acres Lot/Land Size
  • 2024 Year Built
  • Mortgage Wizard 3000 Advanced Breakdown
Property Description

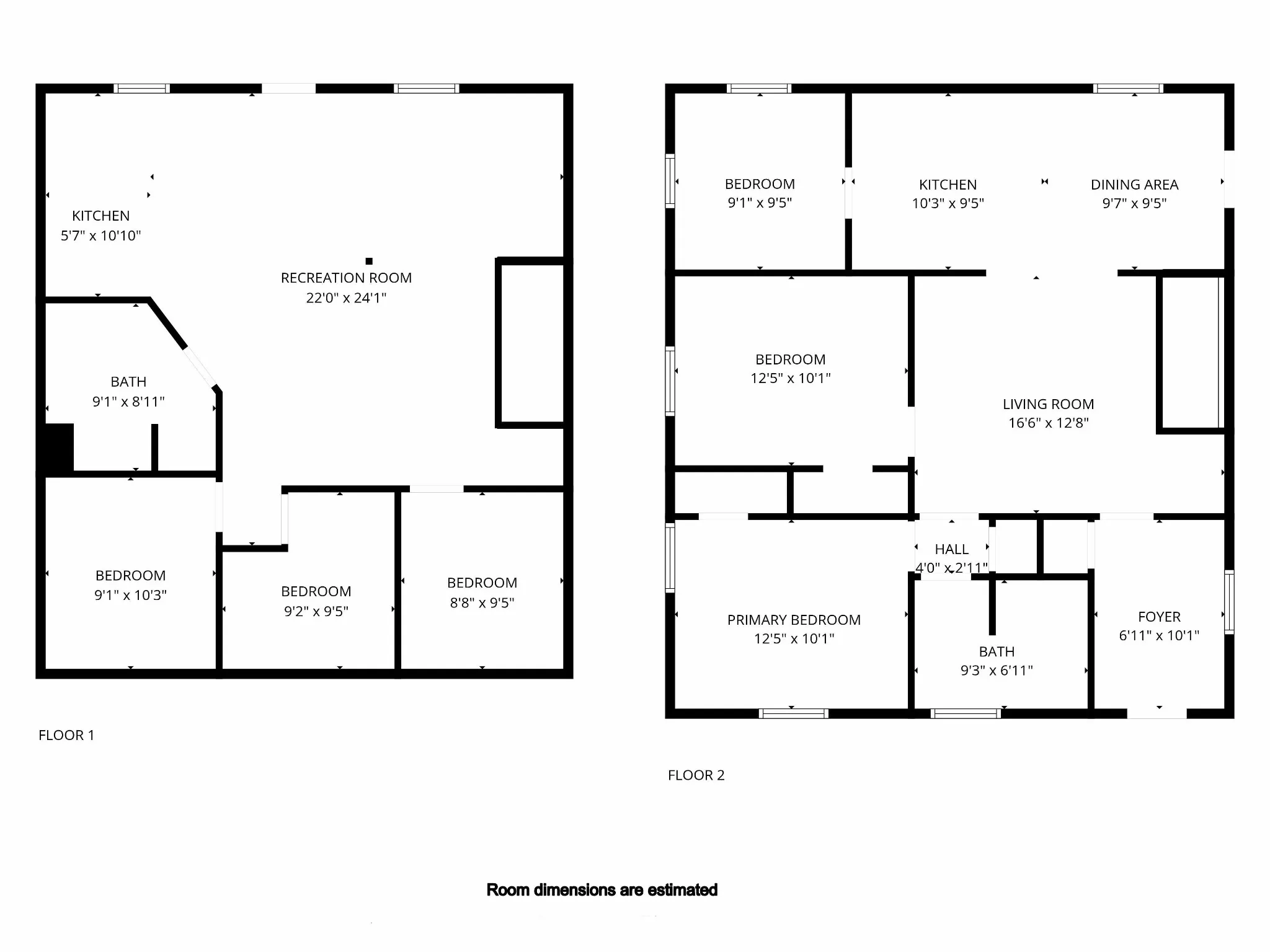
INVESTMENT POTIENTIAL FOR ANY INVESTOR FOR AIRB&B – VRBO RENTALS – TURNKEY: 2380 sq ft rustic home with FULL FINISHED BASEMENT. (well maintained) 6BD/2BA, 1190 sq ft on mail level & basement level with separate entrance for each. Each unit has a full kitchen with a dining area, living room and covered patio & deck. TOTALLY FURNISHED. No restrictions, loads of wildlife, great country setting community, walking distance to Dale Hollow Lake from two marinas. PLUS: Approx 2 to 3 miles from Dale Hollow Dam, Cumberland River & Obey River. A paradise setting for a vacation home, getaway home or to live year around. Two families can live here. Ideal for the in-laws One family on the mail level and another in the basement level.
Buyer to do own due diligence & pertinent information.

Property Details
  • Property Type: Residential
  • Listing Type: For Sale
  • MLS #: 3014767
  • Price: $329,000
  • Full Bathrooms: 2
  • Square Footage: 2,380 Sqft
  • Year Built: 2024
  • Lot Area: 0.57 Acre
  • Office Name: No 1 Quality Realty
  • Agent Name: Debra L. Dodd
  • Property Sub Type: Single Family Residence
  • Roof: Metal
  • Listing Status: Active
Location Info
  • Street Number: 228
  • Street: Bill Hunter Rd
  • City Celina
  • State TN
  • Zipcode 38551
  • County Clay County, TN
  • Subdivision Res
  • Longitude: W86° 33' 6.1''
  • Latitude: N36° 32' 46.3''
  • Directions: GPS WILL GET YOU HERE.
Features
  • Heating System Heat Pump, Central, Electric, Dual
  • Cooling System Central Air, Electric, Wall/Window Unit(s), Dual
  • Basement Full, Other, Apartment
  • Patio Covered, Patio, Deck
  • Utilities Electricity Available, Water Available
  • Architectural Style Ranch
  • Flooring Laminate, Carpet
  • Interior Features Ceiling Fan(s)
  • Sewer Septic Tank
Appliances
  • Dishwasher
  • Microwave
  • Refrigerator
  • Electric Oven
  • Electric Range
Schools
  • Elementary School: Celina K-8
  • Middle School: Celina K-8
  • High School: Clay County High School
Additional Info
  • Water Source: Public
  • Accessibility Features: Accessible Doors
  • Building Size: 2,380 Sqft
  • Construction Materials: Frame
  • Foundation Details: Combination
  • Levels: Two
  • Lot Features: Cleared, Wooded, Other, Views
  • On Market Date: October 10th, 2025
  • Previous Price: $329,000
  • Stories: 1
Financial
  • Annual Tax Amount: $835
Listing Data
  • Mls Status: Active
  • Originating System Name: RealTracs
  • Special Listing Conditions: Standard
  • Modification Timestamp: Apr 15th, 2026 @ 2:58pm
  • Status Change Timestamp: Oct 10th, 2025 @ 7:19pm
mls grid

MLS Source Origin Disclaimer

The data relating to real estate for sale on this website appears in part through an MLS API system, a voluntary cooperative exchange of property listing data between licensed real estate brokerage firms in which Cribz participates, and is provided by local multiple listing services through a licensing agreement. The originating system name of the MLS provider is shown in the listing information on each listing page. Real estate listings held by brokerage firms other than Cribz contain detailed information about them, including the name of the listing brokers. All information is deemed reliable but not guaranteed and should be independently verified. All properties are subject to prior sale, change, or withdrawal. Neither listing broker(s) nor Cribz shall be responsible for any typographical errors, misinformation, or misprints and shall be held totally harmless.

IDX information is provided exclusively for consumers’ personal non-commercial use, may not be used for any purpose other than to identify prospective properties consumers may be interested in purchasing. The data is deemed reliable but is not guaranteed by MLS GRID, and the use of the MLS GRID Data may be subject to an end user license agreement prescribed by the Member Participant’s applicable MLS, if any, and as amended from time to time.

Based on information submitted to the MLS GRID. All data is obtained from various sources and may not have been verified by broker or MLS GRID. Supplied Open House Information is subject to change without notice. All information should be independently reviewed and verified for accuracy. Properties may or may not be listed by the office/agent presenting the information.

The Digital Millennium Copyright Act of 1998, 17 U.S.C. § 512 (the “DMCA”) provides recourse for copyright owners who believe that material appearing on the Internet infringes their rights under U.S. copyright law. If you believe in good faith that any content or material made available in connection with our website or services infringes your copyright, you (or your agent) may send us a notice requesting that the content or material be removed, or access to it blocked. Notices must be sent in writing by email to the contact page of this website.

The DMCA requires that your notice of alleged copyright infringement include the following information: (1) description of the copyrighted work that is the subject of claimed infringement; (2) description of the alleged infringing content and information sufficient to permit us to locate the content; (3) contact information for you, including your address, telephone number, and email address; (4) a statement by you that you have a good faith belief that the content in the manner complained of is not authorized by the copyright owner, or its agent, or by the operation of any law; (5) a statement by you, signed under penalty of perjury, that the information in the notification is accurate and that you have the authority to enforce the copyrights that are claimed to be infringed; and (6) a physical or electronic signature of the copyright owner or a person authorized to act on the copyright owner’s behalf. Failure to include all of the above information may result in the delay of the processing of your complaint.

Back to top