1600 Golf Club Ln, Clarksville, Tennessee 37043

TN, Clarksville
$1,850
  • Active Status
  • 104 Dayz On Cribz Total Days
  • Commercial Lease Property Type
  • 1500 Total Sqft $1/sqft
  • 0.3 Acres Lot/Land Size
  • 1969 Year Built
  • Mortgage Wizard 3000 Advanced Breakdown
Property Description

First Month FREE with a Two-Year Lease! Unlock the potential of your business at 1600 Golf Club Lane — a newly renovated commercial space located in the Clarksville!

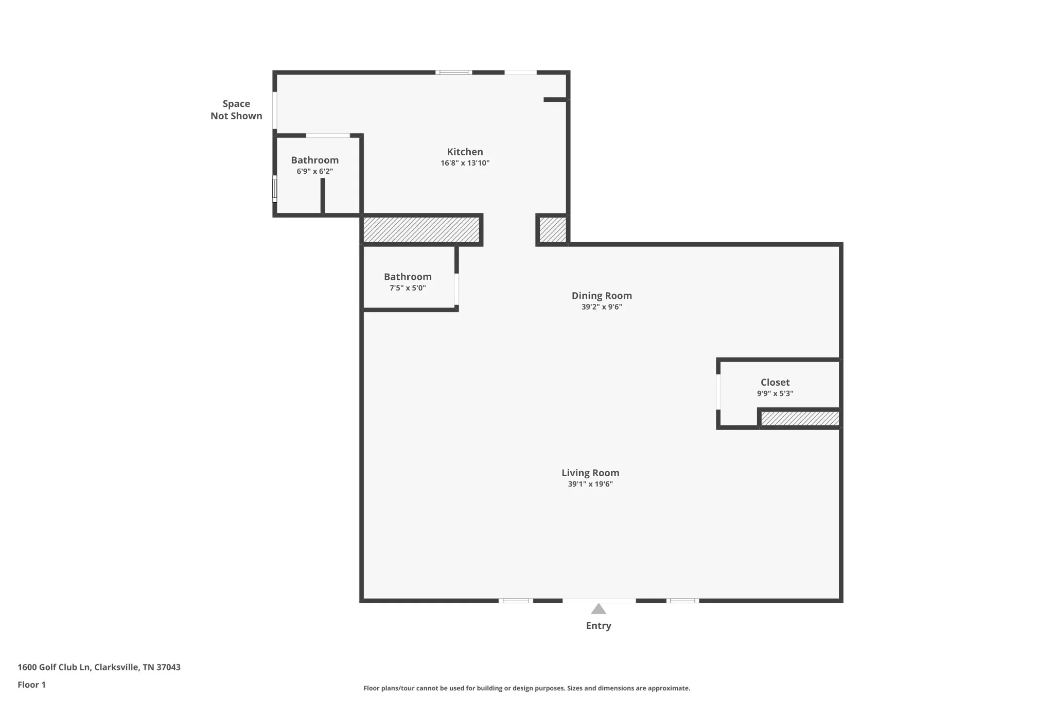
This versatile unit offers a bright, spacious layout designed to adapt to a wide variety of business needs. Upon entering through the front of the building, you’re greeted by a large open room ideal for a retail showroom, boutique studio, office space, client reception area, or creative workspace — the possibilities are endless.

To the right, a generous storage closet provides convenient space for inventory, supplies, or equipment. To the left, you’ll find a well-appointed bathroom featuring a toilet and single-sink vanity for guests or customers.

Toward the back of the space is a secondary room perfect for an employee kitchen, break area, or private workspace. This area includes a sink, storage cabinetry, and countertop space for added convenience. A rare bonus in commercial rentals, this section also features a full bathroom complete with a shower, toilet, and single-sink vanity, offering additional flexibility for businesses that benefit from onsite facilities.

This thoughtfully updated space is move-in ready and positioned in one of Clarksville’s most high-traffic, centrally located commercial corridors. Bring your vision to life at 1600 Golf Club Lane!

Property Details
  • Property Type: Commercial Lease
  • Listing Type: For Rent
  • MLS #: 3071225
  • Price: $1,850
  • Year Built: 1969
  • Lot Area: 0.30 Acre
  • Office Name: Blue Cord Realty, LLC
  • Agent Name: Samantha Kellett
  • Property Sub Type: Mixed Use
  • Roof: Aluminum
  • Listing Status: Active
Location Info
  • Street Number: 1600
  • Street: Golf Club Ln
  • City Clarksville
  • State TN
  • Zipcode 37043
  • County Montgomery County, TN
  • Longitude: W88° 40' 33.6''
  • Latitude: N36° 30' 49.2''
  • Zoning: C2
  • Directions: From Blue Cord Realty head south on Fort Campbell Blvd. Turn right onto N Riverside Dr. Turn left onto Crossland Ave. Turn right onto Golf Club Ln. Destination will be on the right.
Additional Info
  • Building Size: 1,500 Sqft
  • On Market Date: January 2nd, 2026
Listing Data
  • Mls Status: Active
  • Originating System Name: RealTracs
  • Special Listing Conditions: Standard
  • Modification Timestamp: Apr 10th, 2026 @ 7:38pm
  • Status Change Timestamp: Jan 2nd, 2026 @ 4:02pm
mls grid

MLS Source Origin Disclaimer

The data relating to real estate for sale on this website appears in part through an MLS API system, a voluntary cooperative exchange of property listing data between licensed real estate brokerage firms in which Cribz participates, and is provided by local multiple listing services through a licensing agreement. The originating system name of the MLS provider is shown in the listing information on each listing page. Real estate listings held by brokerage firms other than Cribz contain detailed information about them, including the name of the listing brokers. All information is deemed reliable but not guaranteed and should be independently verified. All properties are subject to prior sale, change, or withdrawal. Neither listing broker(s) nor Cribz shall be responsible for any typographical errors, misinformation, or misprints and shall be held totally harmless.

IDX information is provided exclusively for consumers’ personal non-commercial use, may not be used for any purpose other than to identify prospective properties consumers may be interested in purchasing. The data is deemed reliable but is not guaranteed by MLS GRID, and the use of the MLS GRID Data may be subject to an end user license agreement prescribed by the Member Participant’s applicable MLS, if any, and as amended from time to time.

Based on information submitted to the MLS GRID. All data is obtained from various sources and may not have been verified by broker or MLS GRID. Supplied Open House Information is subject to change without notice. All information should be independently reviewed and verified for accuracy. Properties may or may not be listed by the office/agent presenting the information.

The Digital Millennium Copyright Act of 1998, 17 U.S.C. § 512 (the “DMCA”) provides recourse for copyright owners who believe that material appearing on the Internet infringes their rights under U.S. copyright law. If you believe in good faith that any content or material made available in connection with our website or services infringes your copyright, you (or your agent) may send us a notice requesting that the content or material be removed, or access to it blocked. Notices must be sent in writing by email to the contact page of this website.

The DMCA requires that your notice of alleged copyright infringement include the following information: (1) description of the copyrighted work that is the subject of claimed infringement; (2) description of the alleged infringing content and information sufficient to permit us to locate the content; (3) contact information for you, including your address, telephone number, and email address; (4) a statement by you that you have a good faith belief that the content in the manner complained of is not authorized by the copyright owner, or its agent, or by the operation of any law; (5) a statement by you, signed under penalty of perjury, that the information in the notification is accurate and that you have the authority to enforce the copyrights that are claimed to be infringed; and (6) a physical or electronic signature of the copyright owner or a person authorized to act on the copyright owner’s behalf. Failure to include all of the above information may result in the delay of the processing of your complaint.

Back to top