2362 Little Bend Road, Signal Mountain, Tennessee 37377

TN, Signal Mountain
$359,000 $375,000
  • Active Status
  • 601 Dayz On Cribz Total Days
  • Land Property Type
  • 1.75 Acres Lot/Land Size
  • Mortgage Wizard 3000 Advanced Breakdown
Property Description

This amazing private lot is located in the desirable gated Boston Branch Community and offers a view of the North Chicamauga State natural area which includes both the gorge as well as the ridge on the opposite side. You will relax as you hear the calm of the North Chick Creek below. The community offers a stocked 25-+ acre lake where you can enjoy fishing, swimming, paddle boarding and canoeing. Also for the hiking and biking enthusiasts there are multiple trails near by to enjoy. No need to worry about perc or survey , both have been done on this amazing lot just for you!!. The area is zoned for award winning Signal Mtn schools. Come visit today – be prepared to enjoy the immediate calm and serenity of this magical community.

Property Details
  • Property Type: Land
  • Listing Type: For Sale
  • MLS #: 3072426
  • Price: $359,000
  • Lot Area: 1.75 Acre
  • Office Name: Greater Downtown Realty dba Keller Williams Realty
  • Agent Name: Theresa Craig
  • Listing Status: Active
Location Info
  • Street Number: 2362
  • Street: Little Bend Road
  • City Signal Mountain
  • State TN
  • Zipcode 37377
  • County Hamilton County, TN
  • Subdivision Boston Branch
  • Longitude: W86° 43' 50.4''
  • Latitude: N35° 14' 49''
  • Zoning: R-1
  • Directions: Take hwy 27 up Signal Mountain, Turn Right on Coral Rd., Turn Left on Sawyer, Turn Left on Hixson Springs Rd. Enter gate continue straight. Take First Rt. Lot on the right. Or faster route take Roberts Mill Rd to Hixson Springs Rd. Enter gate continue straight. Take First Rt. Lot on the right.
Features
  • Utilities Water Available
  • Exterior Features Dock
  • Sewer None
Schools
  • Elementary School: Nolan Elementary School
  • Middle School: Signal Mountain Middle/High School
  • High School: Signal Mountain Middle/High School
Additional Info
  • Water Source: Public
  • Association Amenities: Playground,Gated
  • Current Use: Unimproved
  • Lot Features: Level, Wooded, Other, Sloped
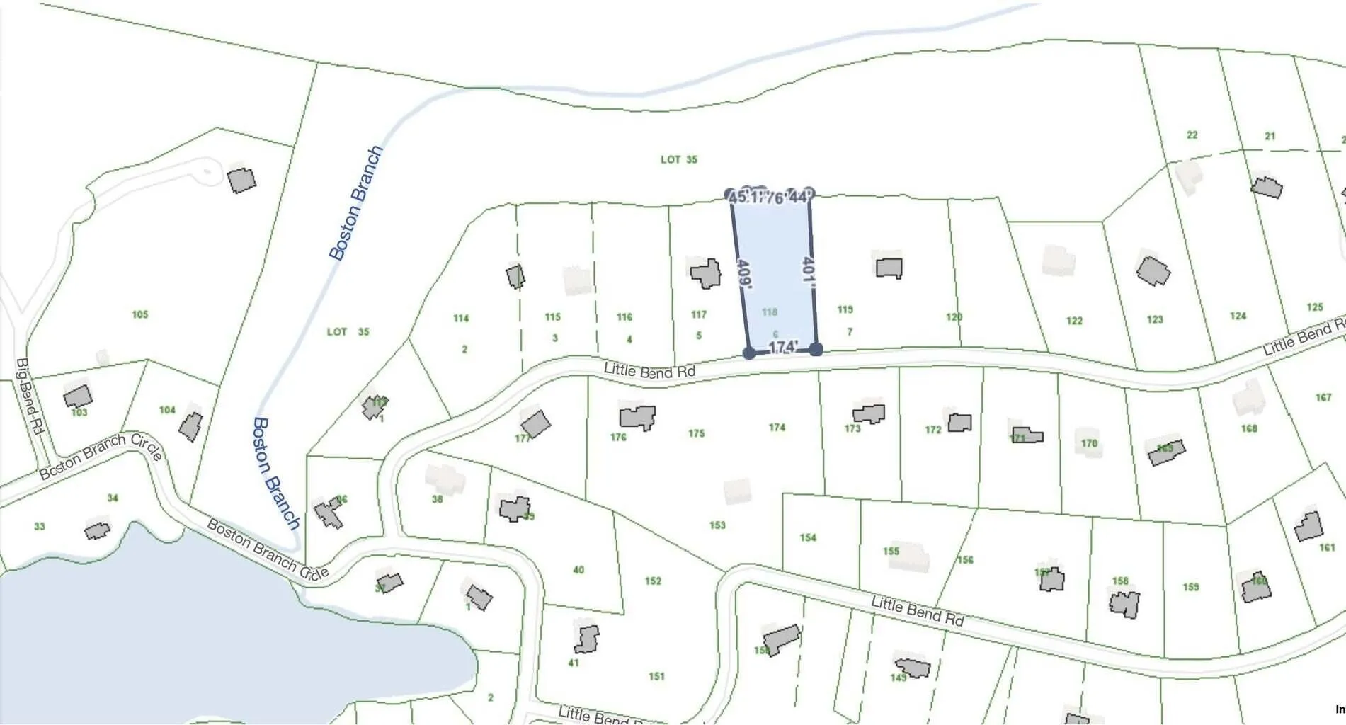
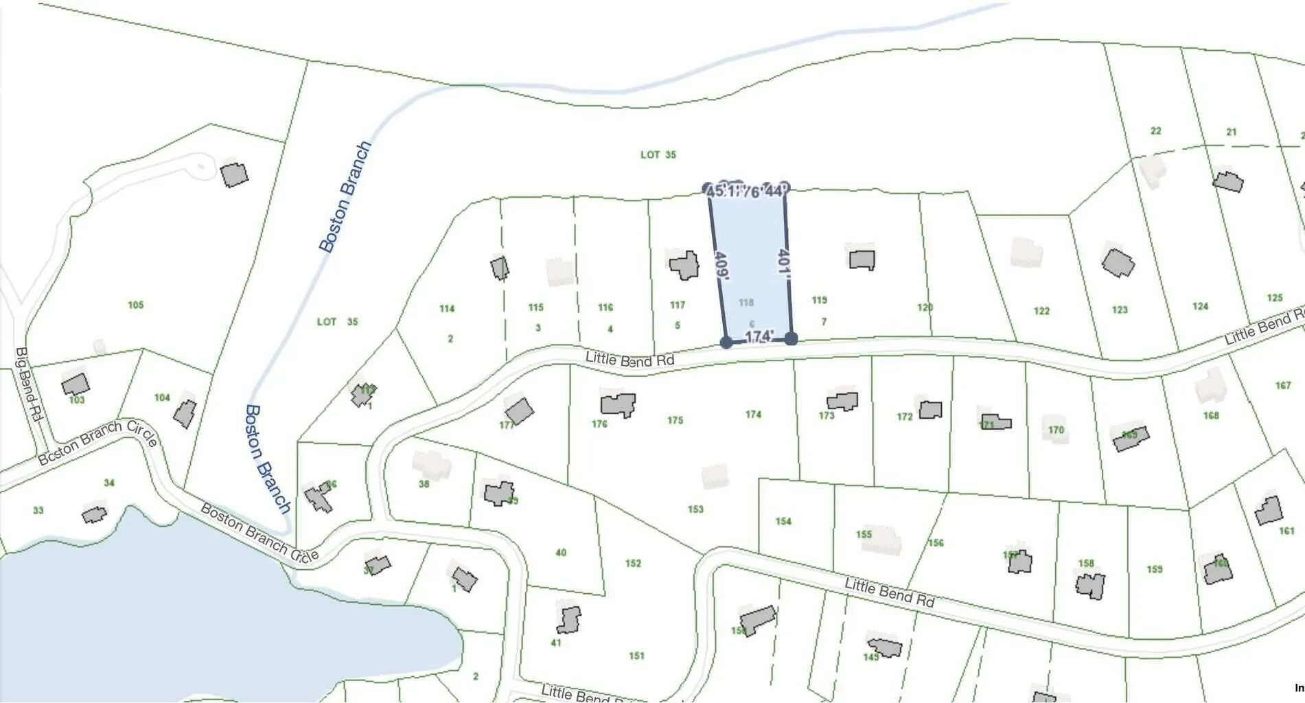
  • Lot Size Dimensions: 172.18X393
  • On Market Date: January 6th, 2026
  • Previous Price: $375,000
Financial
  • Association Fee: $840
  • Association Fee Frequency: Annually
  • Association: Yes
  • Annual Tax Amount: $419
Listing Data
  • Mls Status: Active
  • Originating System Name: RealTracs
  • Special Listing Conditions: Standard
  • Modification Timestamp: May 13th, 2026 @ 8:45pm
  • Status Change Timestamp: Jan 6th, 2026 @ 4:20pm
mls grid

MLS Source Origin Disclaimer

The data relating to real estate for sale on this website appears in part through an MLS API system, a voluntary cooperative exchange of property listing data between licensed real estate brokerage firms in which Cribz participates, and is provided by local multiple listing services through a licensing agreement. The originating system name of the MLS provider is shown in the listing information on each listing page. Real estate listings held by brokerage firms other than Cribz contain detailed information about them, including the name of the listing brokers. All information is deemed reliable but not guaranteed and should be independently verified. All properties are subject to prior sale, change, or withdrawal. Neither listing broker(s) nor Cribz shall be responsible for any typographical errors, misinformation, or misprints and shall be held totally harmless.

IDX information is provided exclusively for consumers’ personal non-commercial use, may not be used for any purpose other than to identify prospective properties consumers may be interested in purchasing. The data is deemed reliable but is not guaranteed by MLS GRID, and the use of the MLS GRID Data may be subject to an end user license agreement prescribed by the Member Participant’s applicable MLS, if any, and as amended from time to time.

Based on information submitted to the MLS GRID. All data is obtained from various sources and may not have been verified by broker or MLS GRID. Supplied Open House Information is subject to change without notice. All information should be independently reviewed and verified for accuracy. Properties may or may not be listed by the office/agent presenting the information.

The Digital Millennium Copyright Act of 1998, 17 U.S.C. § 512 (the “DMCA”) provides recourse for copyright owners who believe that material appearing on the Internet infringes their rights under U.S. copyright law. If you believe in good faith that any content or material made available in connection with our website or services infringes your copyright, you (or your agent) may send us a notice requesting that the content or material be removed, or access to it blocked. Notices must be sent in writing by email to the contact page of this website.

The DMCA requires that your notice of alleged copyright infringement include the following information: (1) description of the copyrighted work that is the subject of claimed infringement; (2) description of the alleged infringing content and information sufficient to permit us to locate the content; (3) contact information for you, including your address, telephone number, and email address; (4) a statement by you that you have a good faith belief that the content in the manner complained of is not authorized by the copyright owner, or its agent, or by the operation of any law; (5) a statement by you, signed under penalty of perjury, that the information in the notification is accurate and that you have the authority to enforce the copyrights that are claimed to be infringed; and (6) a physical or electronic signature of the copyright owner or a person authorized to act on the copyright owner’s behalf. Failure to include all of the above information may result in the delay of the processing of your complaint.

Back to top