324 Lakeview Rd, Gallatin, Tennessee 37066

TN, Gallatin
$3,750,000
  • Active Status
  • 58 Dayz On Cribz Total Days
  • Residential Property Type
  • 5 Beds Total Bedrooms
  • 8 Baths Full + Half Bathrooms
  • 6345 Total Sqft $591/sqft
  • 5.52 Acres Lot/Land Size
  • 2023 Year Built
  • Mortgage Wizard 3000 Advanced Breakdown
Property Description

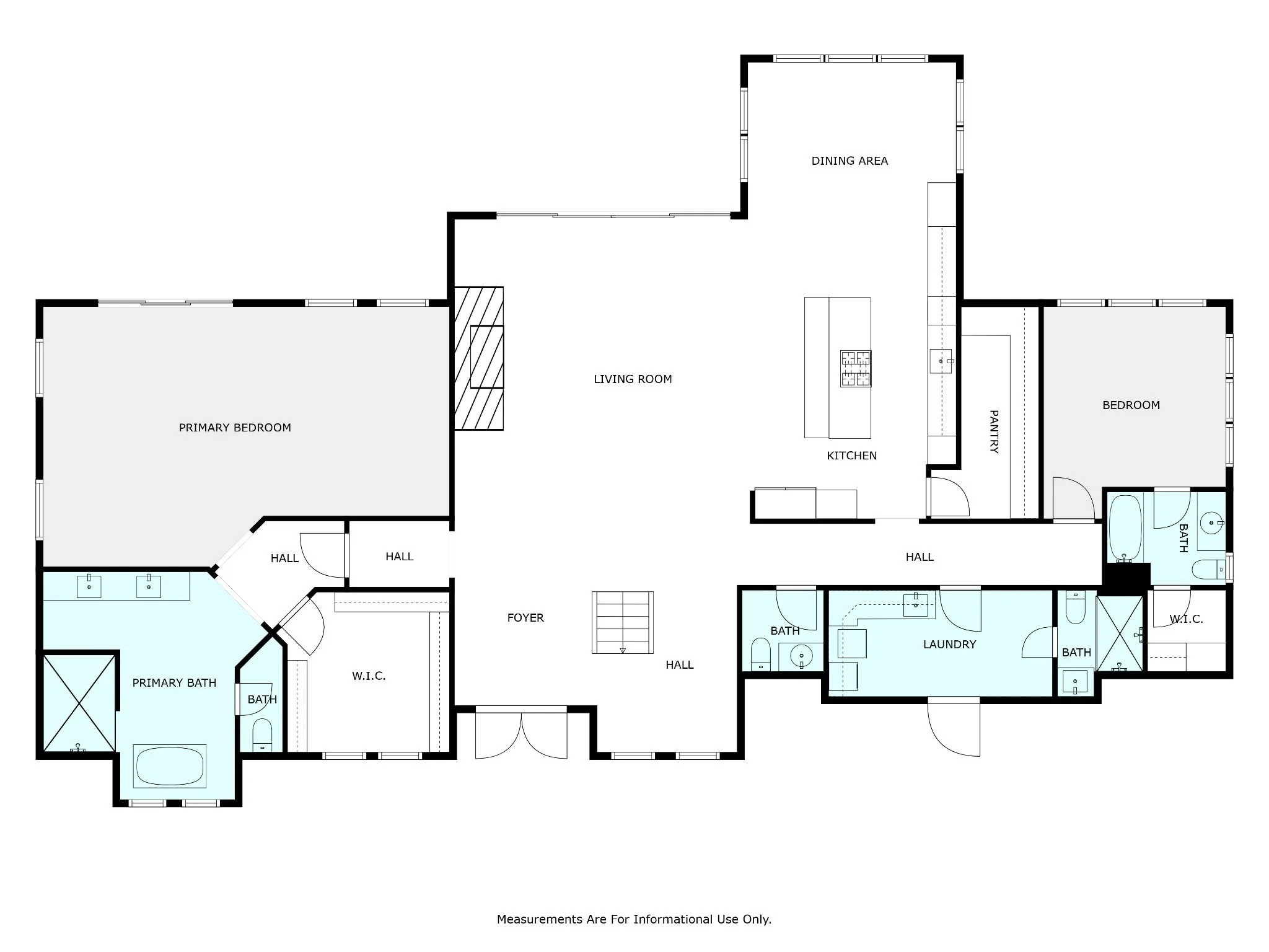
Stunning 5BR/5.3BA Luxury Lakefront Home with Private Cove & Boat Slip

This one-of-a-kind lakefront estate offers 5 bedrooms, 5 full baths, 3 half baths, 2 bonus rooms, and an office used as a 6th bedroom. Highlights include walk-in closets with custom cabinets, dual laundry rooms, a dog bath, and a show-stopping 28-ft ceiling living room with a 24-ft wood-burning fireplace.

Chef’s kitchen with Hickory cabinets, granite & butcher block counters, black walnut bar top, double ovens, gas cooktop, ice maker, and double refrigerator. Enjoy a copper tub, custom stairs, wideplank Hickory floors, and tongue & groove ceilings throughout.

Outdoor features: heated/cooled automated pool, travertine deck, hot tub, screened porch, and TimberTech decking. Exterior includes Diamond Kote siding, stone, architectural shingles, metal roof, and stamped concrete.

Extras: 350 ft lake frontage, 26-ft covered boat slip with lift, 9-ft steel front door, 16-ft & 9-ft glass sliders, custom garage doors, 3-car attached garage, 4-car detached (fits 8 w/lifts), all with 13-ft ceilings.

A true luxury retreat—inside and out.

Property Details
  • Property Type: Residential
  • Listing Type: For Sale
  • MLS #: 3133341
  • Price: $3,750,000
  • View: Lake
  • Half Bathrooms: 3
  • Full Bathrooms: 5
  • Square Footage: 6,345 Sqft
  • Year Built: 2023
  • Lot Area: 5.52 Acre
  • Waterfront: 1
  • Office Name: The Adcock Group
  • Agent Name: Jacob Adcock
  • Property Sub Type: Single Family Residence
  • Roof: Shingle
  • Listing Status: Active
Location Info
  • Street Number: 324
  • Street: Lakeview Rd
  • City Gallatin
  • State TN
  • Zipcode 37066
  • County Sumner County, TN
  • Subdivision None
  • Longitude: W87° 38' 54.6''
  • Latitude: N36° 21' 35.9''
  • Directions: From Gallatin - Take Airport Road to Cairo Road. Follow Cairo Road to end and take a right on Zieglers Fort and then an immediately left on Lakeview Road. Follow to 324 on right.
Features
  • Swimming Pool In Ground
  • Heating System Central, Electric
  • Cooling System Central Air, Electric
  • Basement None, Crawl Space
  • Fireplace Living Room
  • Patio Covered, Patio, Screened, Deck
  • Parking Attached/Detached
  • Utilities Electricity Available, Water Available, Cable Connected
  • Waterfront Features Lake Front
  • Exterior Features Boat Slip
  • Fireplaces Total 1
  • Flooring Wood, Carpet, Tile
  • Interior Features Open Floorplan, Walk-In Closet(s), High Ceilings, Built-in Features, Pantry, High Speed Internet, Entrance Foyer, Ceiling Fan(s), Extra Closets, Hot Tub
  • Laundry Features Electric Dryer Hookup, Washer Hookup
  • Private Pool 1
  • Sewer Septic Tank
Appliances
  • Dishwasher
  • Microwave
  • Refrigerator
  • Built-In Electric Oven
  • Built-In Gas Range
Schools
  • Elementary School: Vena Stuart Elementary
  • Middle School: Joe Shafer Middle School
  • High School: Gallatin Senior High School
Additional Info
  • Water Source: Public
  • Building Size: 6,345 Sqft
  • Construction Materials: Wood Siding
  • Garage: 7 Spaces
  • Levels: Two
  • Lot Features: Views
  • On Market Date: February 20th, 2026
  • Previous Price: $3,750,000
  • Stories: 2
Financial
  • Annual Tax Amount: $8,803
Listing Data
  • Mls Status: Active
  • Originating System Name: RealTracs
  • Special Listing Conditions: Standard
  • Modification Timestamp: Feb 20th, 2026 @ 5:31pm
  • Status Change Timestamp: Feb 20th, 2026 @ 5:29pm
mls grid

MLS Source Origin Disclaimer

The data relating to real estate for sale on this website appears in part through an MLS API system, a voluntary cooperative exchange of property listing data between licensed real estate brokerage firms in which Cribz participates, and is provided by local multiple listing services through a licensing agreement. The originating system name of the MLS provider is shown in the listing information on each listing page. Real estate listings held by brokerage firms other than Cribz contain detailed information about them, including the name of the listing brokers. All information is deemed reliable but not guaranteed and should be independently verified. All properties are subject to prior sale, change, or withdrawal. Neither listing broker(s) nor Cribz shall be responsible for any typographical errors, misinformation, or misprints and shall be held totally harmless.

IDX information is provided exclusively for consumers’ personal non-commercial use, may not be used for any purpose other than to identify prospective properties consumers may be interested in purchasing. The data is deemed reliable but is not guaranteed by MLS GRID, and the use of the MLS GRID Data may be subject to an end user license agreement prescribed by the Member Participant’s applicable MLS, if any, and as amended from time to time.

Based on information submitted to the MLS GRID. All data is obtained from various sources and may not have been verified by broker or MLS GRID. Supplied Open House Information is subject to change without notice. All information should be independently reviewed and verified for accuracy. Properties may or may not be listed by the office/agent presenting the information.

The Digital Millennium Copyright Act of 1998, 17 U.S.C. § 512 (the “DMCA”) provides recourse for copyright owners who believe that material appearing on the Internet infringes their rights under U.S. copyright law. If you believe in good faith that any content or material made available in connection with our website or services infringes your copyright, you (or your agent) may send us a notice requesting that the content or material be removed, or access to it blocked. Notices must be sent in writing by email to the contact page of this website.

The DMCA requires that your notice of alleged copyright infringement include the following information: (1) description of the copyrighted work that is the subject of claimed infringement; (2) description of the alleged infringing content and information sufficient to permit us to locate the content; (3) contact information for you, including your address, telephone number, and email address; (4) a statement by you that you have a good faith belief that the content in the manner complained of is not authorized by the copyright owner, or its agent, or by the operation of any law; (5) a statement by you, signed under penalty of perjury, that the information in the notification is accurate and that you have the authority to enforce the copyrights that are claimed to be infringed; and (6) a physical or electronic signature of the copyright owner or a person authorized to act on the copyright owner’s behalf. Failure to include all of the above information may result in the delay of the processing of your complaint.

Back to top