35 Taylor Ln, Lafayette, Tennessee 37083

TN, Lafayette
$589,000
  • Closed Status
  • 827 Days Off Market Sorry Charlie 🙁
  • Residential Property Type
  • 4 Beds Total Bedrooms
  • 3 Baths Full + Half Bathrooms
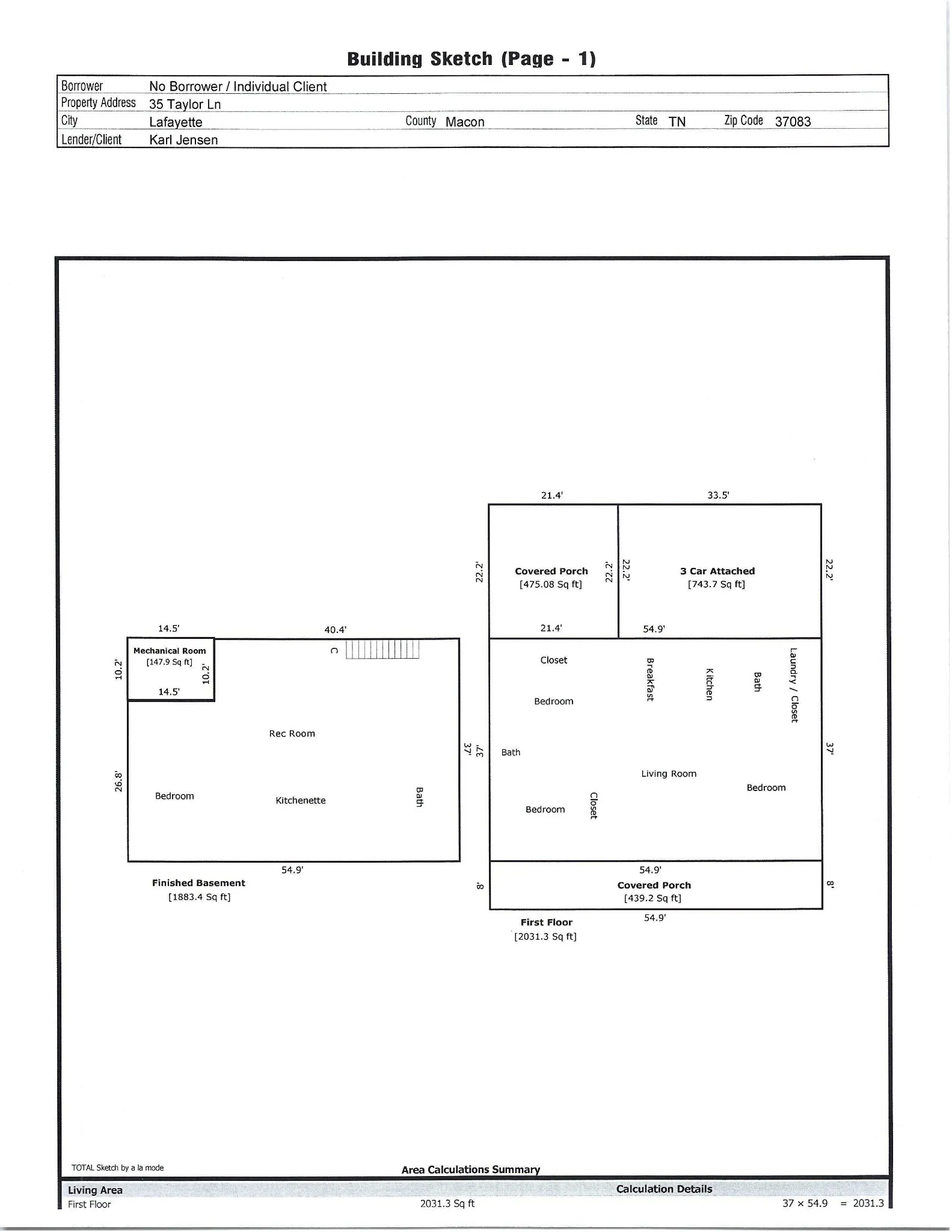
  • 3914 Total Sqft $150/sqft
  • 0.97 Acres Lot/Land Size
  • 2014 Year Built
  • Mortgage Wizard 3000 Advanced Breakdown
Property Description

Beautiful Hi Tech Custom Built Home in the Country! The Amenities it offers is Amazing!! EXTERIOR – NEW ROOF! Stamped Concrete Front Porch & Back Patio w/ Gas Grill Connection! Completely Fenced in Yard! Custom Built with ICF Construction (Insulating Concrete Form) INTERIOR- Custom Hand Built Cabinets, Custom All Granite Counter Tops, HUGE MB Shower with Laundry adjacent to MB, HI SPEED INTERNET coupled with Signal Booster System & IQ Technology!! Central Vac System, Tankless Gas Water Heater, Carrier Dual Fuel Heat Pump, Whole House Security System. Flush Mounted Stereo Speaker System (Main Floor & Patio). Fully Finished Walkout Basement with Full 2nd Kitchen and Bedroom. Spacious Living to accommodate a Mother in Laws Quarters, Recreation Area, Workout Space, Golf Simulator, or Recording Studio!! *HUGE BONUS ROOM* There is a 1187 Sq Ft Upstairs – 90% Finished, Framed, Insulated, Plumbed with Seller providing NEW FLOORING!!*(See Features & Benefits Page)

Property Details
  • Property Type: Residential
  • Listing Type: For Sale
  • MLS #: 2597631
  • Price: $589,000
  • Full Bathrooms: 3
  • Square Footage: 3,914 Sqft
  • Year Built: 2014
  • Lot Area: 0.97 Acre
  • Office Name: Benchmark Realty, LLC
  • Agent Name: Curtis Phillips
  • Property Sub Type: Single Family Residence
  • Roof: Asphalt
  • Listing Status: Closed
Location Info
  • Street Number: 35
  • Street: Taylor Ln
  • City Lafayette
  • State TN
  • Zipcode 37083
  • County Macon County, TN
  • Subdivision Ridgecrest
  • Longitude: W87° 58' 4.8''
  • Latitude: N36° 33' 0.7''
  • Directions: From Lafayette Public Square turn onto Scottsville Rd. Go 2.2 Miles. Turn Left onto Tuck Rd. Go .05 Miles. Home is on the corner of Tuck Rd & Taylor Ln. Just 1 Hour NE of Nashville Airport. Approximately 38 minutes to Downtown Gallatin.
Features
  • Heating System Heat Pump, Natural Gas
  • Cooling System Central Air
  • Basement Finished
  • Fence Full
  • Patio Covered Patio, Covered Porch
  • Parking Attached - Rear
  • Utilities Water Available
  • Architectural Style Traditional
  • Exterior Features Garage Door Opener, Smart Camera(s)/Recording
  • Flooring Carpet, Tile, Concrete, Finished Wood
  • Interior Features High Speed Internet, Central Vacuum, Extra Closets, In-Law Floorplan, Air Filter, Humidifier
  • Sewer Septic Tank
Appliances
  • Dishwasher
  • Microwave
Schools
  • Elementary School: Fairlane Elementary
  • Middle School: Macon County Junior High School
  • High School: Macon County High School
Additional Info
  • Water Source: Public
  • Accessibility Features: Accessible Approach with Ramp
  • Attached Garage: Yes
  • Building Size: 3,914 Sqft
  • Construction Materials: Brick, ICFs (Insulated Concrete Forms)
  • Garage: 3 Spaces
  • Levels: Two
  • Lot Features: Rolling Slope
  • On Market Date: November 30th, 2023
  • Previous Price: $589,000
  • Stories: 2
Financial
  • Annual Tax Amount: $1,492
Listing Data
  • Mls Status: Closed
  • Originating System Name: RealTracs
  • Special Listing Conditions: Standard
  • Modification Timestamp: Jan 31st, 2024 @ 1:22am
  • Status Change Timestamp: Jan 31st, 2024 @ 1:20am
mls grid

MLS Source Origin Disclaimer

The data relating to real estate for sale on this website appears in part through an MLS API system, a voluntary cooperative exchange of property listing data between licensed real estate brokerage firms in which Cribz participates, and is provided by local multiple listing services through a licensing agreement. The originating system name of the MLS provider is shown in the listing information on each listing page. Real estate listings held by brokerage firms other than Cribz contain detailed information about them, including the name of the listing brokers. All information is deemed reliable but not guaranteed and should be independently verified. All properties are subject to prior sale, change, or withdrawal. Neither listing broker(s) nor Cribz shall be responsible for any typographical errors, misinformation, or misprints and shall be held totally harmless.

IDX information is provided exclusively for consumers’ personal non-commercial use, may not be used for any purpose other than to identify prospective properties consumers may be interested in purchasing. The data is deemed reliable but is not guaranteed by MLS GRID, and the use of the MLS GRID Data may be subject to an end user license agreement prescribed by the Member Participant’s applicable MLS, if any, and as amended from time to time.

Based on information submitted to the MLS GRID. All data is obtained from various sources and may not have been verified by broker or MLS GRID. Supplied Open House Information is subject to change without notice. All information should be independently reviewed and verified for accuracy. Properties may or may not be listed by the office/agent presenting the information.

The Digital Millennium Copyright Act of 1998, 17 U.S.C. § 512 (the “DMCA”) provides recourse for copyright owners who believe that material appearing on the Internet infringes their rights under U.S. copyright law. If you believe in good faith that any content or material made available in connection with our website or services infringes your copyright, you (or your agent) may send us a notice requesting that the content or material be removed, or access to it blocked. Notices must be sent in writing by email to the contact page of this website.

The DMCA requires that your notice of alleged copyright infringement include the following information: (1) description of the copyrighted work that is the subject of claimed infringement; (2) description of the alleged infringing content and information sufficient to permit us to locate the content; (3) contact information for you, including your address, telephone number, and email address; (4) a statement by you that you have a good faith belief that the content in the manner complained of is not authorized by the copyright owner, or its agent, or by the operation of any law; (5) a statement by you, signed under penalty of perjury, that the information in the notification is accurate and that you have the authority to enforce the copyrights that are claimed to be infringed; and (6) a physical or electronic signature of the copyright owner or a person authorized to act on the copyright owner’s behalf. Failure to include all of the above information may result in the delay of the processing of your complaint.

Back to top