104 Summitt Dr, Columbia, Tennessee 38401

TN, Columbia
$294,900 $324,900
  • Canceled Status
  • 770 Days Off Market Sorry Charlie 🙁
  • Residential Property Type
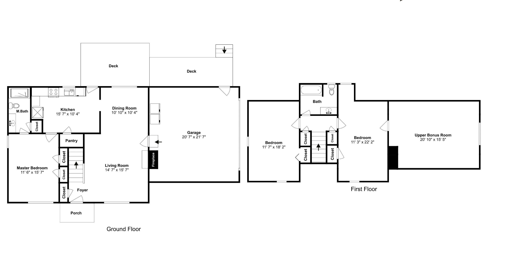
  • 3 Beds Total Bedrooms
  • 2 Baths Full + Half Bathrooms
  • 1836 Total Sqft $161/sqft
  • 0.36 Acres Lot/Land Size
  • 1986 Year Built
  • Mortgage Wizard 3000 Advanced Breakdown
Property Description

ATTENTION INVESTORS!! Brick home situated on a large lot in an established North Columbia neighborhood. Great floor plan with the primary suite on the main level, spacious secondary bedrooms and a bonus room on the upper level. This home is ready for renovations to customize and make it your own. The home is being sold “AS IS” with NO repairs which are reflected in the list price. Endless potential!

Property Details
  • Property Type: Residential
  • Listing Type: For Sale
  • MLS #: 2620211
  • Price: $294,900
  • Full Bathrooms: 2
  • Square Footage: 1,836 Sqft
  • Year Built: 1986
  • Lot Area: 0.36 Acre
  • Office Name: Offerpad Brokerage
  • Agent Name: Steve Metarelis
  • Property Sub Type: Single Family Residence
  • Listing Status: Canceled
Location Info
  • Street Number: 104
  • Street: Summitt Dr
  • City Columbia
  • State TN
  • Zipcode 38401
  • County Maury County, TN
  • Subdivision Sagewood
  • Longitude: W87° 0' 14.4''
  • Latitude: N35° 40' 50.2''
  • Directions: I-65 South to Saturn Pkwy, Take Saturn Pkwy to Hwy 31 South towards Columbia. Left on Mangrum Dr, left on Summitt Dr. Home is on the right.
Features
  • Heating System Natural Gas, Forced Air
  • Cooling System Central Air, Electric
  • Basement Crawl Space
  • Fireplace Living Room
  • Patio Deck
  • Parking Driveway, Attached - Side
  • Utilities Electricity Available, Water Available
  • Fireplaces Total 1
  • Flooring Carpet, Vinyl
  • Interior Features Primary Bedroom Main Floor, Ceiling Fan(s)
  • Sewer Public Sewer
Appliances
  • Dishwasher
Schools
  • Elementary School: Battle Creek Elementary School
  • Middle School: Battle Creek Middle School
  • High School: Spring Hill High School
Additional Info
  • Water Source: Public
  • Building Size: 1,836 Sqft
  • Construction Materials: Brick, Vinyl Siding
  • Garage: 2 Spaces
  • Levels: One
  • On Market Date: February 16th, 2024
  • Previous Price: $324,900
  • Stories: 2
Financial
  • Annual Tax Amount: $1,072
Listing Data
  • Mls Status: Canceled
  • Originating System Name: RealTracs
  • Special Listing Conditions: Standard
  • Modification Timestamp: Mar 27th, 2024 @ 5:03pm
  • Status Change Timestamp: Mar 27th, 2024 @ 5:01pm
mls grid

MLS Source Origin Disclaimer

The data relating to real estate for sale on this website appears in part through an MLS API system, a voluntary cooperative exchange of property listing data between licensed real estate brokerage firms in which Cribz participates, and is provided by local multiple listing services through a licensing agreement. The originating system name of the MLS provider is shown in the listing information on each listing page. Real estate listings held by brokerage firms other than Cribz contain detailed information about them, including the name of the listing brokers. All information is deemed reliable but not guaranteed and should be independently verified. All properties are subject to prior sale, change, or withdrawal. Neither listing broker(s) nor Cribz shall be responsible for any typographical errors, misinformation, or misprints and shall be held totally harmless.

IDX information is provided exclusively for consumers’ personal non-commercial use, may not be used for any purpose other than to identify prospective properties consumers may be interested in purchasing. The data is deemed reliable but is not guaranteed by MLS GRID, and the use of the MLS GRID Data may be subject to an end user license agreement prescribed by the Member Participant’s applicable MLS, if any, and as amended from time to time.

Based on information submitted to the MLS GRID. All data is obtained from various sources and may not have been verified by broker or MLS GRID. Supplied Open House Information is subject to change without notice. All information should be independently reviewed and verified for accuracy. Properties may or may not be listed by the office/agent presenting the information.

The Digital Millennium Copyright Act of 1998, 17 U.S.C. § 512 (the “DMCA”) provides recourse for copyright owners who believe that material appearing on the Internet infringes their rights under U.S. copyright law. If you believe in good faith that any content or material made available in connection with our website or services infringes your copyright, you (or your agent) may send us a notice requesting that the content or material be removed, or access to it blocked. Notices must be sent in writing by email to the contact page of this website.

The DMCA requires that your notice of alleged copyright infringement include the following information: (1) description of the copyrighted work that is the subject of claimed infringement; (2) description of the alleged infringing content and information sufficient to permit us to locate the content; (3) contact information for you, including your address, telephone number, and email address; (4) a statement by you that you have a good faith belief that the content in the manner complained of is not authorized by the copyright owner, or its agent, or by the operation of any law; (5) a statement by you, signed under penalty of perjury, that the information in the notification is accurate and that you have the authority to enforce the copyrights that are claimed to be infringed; and (6) a physical or electronic signature of the copyright owner or a person authorized to act on the copyright owner’s behalf. Failure to include all of the above information may result in the delay of the processing of your complaint.

Back to top